Two or more storey for sale - Montréal (Pierrefonds-Roxboro)$2,499,000
$2,499,000
Listing brokers : Simon Bourgeois - Engel & Völkers ● Michaël Luneau - Engel & Völkers ● # 13286412
5
4+1
2
6
22
1,194.8 mc
2012
Description
nd
Details
- Distinctive features
- Water front (River)
- Motor boat allowed
- Driveway
- Plain paving stone
- Heating system
- Air circulation
- Water supply
- Municipality
- Heating energy
- Electricity
- Equipment available
- Central vacuum cleaner system installation
- Private balcony
- Level 2 charging station
- Private yard
- Ventilation system
- Electric garage door
- Central heat pump
- Foundation
- Poured concrete
- Hearth stove
- Gaz fireplace
- Garage
- Attached
- Heated
- Double width or more
- Proximity
- Highway
- Daycare centre
- Park - green area
- Bicycle path
- Elementary school
- High school
- Public transport
- Bathroom / Washroom
- Adjoining to primary bedroom
- Separate shower
- Basement
- 6 feet and over
- Separate entrance
- Finished basement
- Parking (total)
- Outdoor (6)
- Garage (2)
- Sewage system
- Municipal sewer
- Landscaping
- Land / Yard lined with hedges
- Roofing
- Asphalt shingles
- Tin
- Topography
- Flat
- View
- Water
- Zoning
- Residential
- Land surface area
- 1,194.8 mc
- Front of the property
- 23.03 m
- Depth of Field
- 55 m
- Name of body of water
- Rivière des Prairies
- Construction year
- 2012
- Facade of the building
- 16.48 m
- Building Depth
- 20.31 m
- Number of rooms
- 22
- Number of bedrooms
- 5
- Number of bedrooms above ground
- 4
- Number of rooms in the basement
- 1
- Number of bathrooms
- 4
- Number of half-baths
- 1
- Building Type
- Detached
- Unit :
- 1
- Number of rooms
- 22
- Number of bedrooms
- 5
Room type
Floor
Dimensions
Flooring
Other details
- Room type :
- Hallway
- Floor :
- 1st level/Ground floor
- Dimensions :
- 8.3x5.11 p
- Flooring :
- Ceramic tiles
- Other details :
- Room type :
- Home office
- Floor :
- 1st level/Ground floor
- Dimensions :
- 12.11x15.2 p
- Flooring :
- Wood
- Other details :
- Room type :
- Living room
- Floor :
- 1st level/Ground floor
- Dimensions :
- 21.7x20.2 p
- Flooring :
- Wood
- Other details :
- Room type :
- Dining room
- Floor :
- 1st level/Ground floor
- Dimensions :
- 20x10 p
- Flooring :
- Ceramic tiles
- Other details :
- Room type :
- Kitchen
- Floor :
- 1st level/Ground floor
- Dimensions :
- 10.8x20.8 p
- Flooring :
- Ceramic tiles
- Other details :
- Room type :
- Dinette
- Floor :
- 1st level/Ground floor
- Dimensions :
- 12.9x14.11 p
- Flooring :
- Wood
- Other details :
- Room type :
- Washroom
- Floor :
- 1st level/Ground floor
- Dimensions :
- 5.11x5.11 p
- Flooring :
- Ceramic tiles
- Other details :
- Room type :
- Mudroom
- Floor :
- 1st level/Ground floor
- Dimensions :
- 11.6x9.3 p
- Flooring :
- Ceramic tiles
- Other details :
- Room type :
- Bedroom
- Floor :
- 2nd floor
- Dimensions :
- 21.11x15.11 p
- Flooring :
- Wood
- Other details :
- Room type :
- Bathroom
- Floor :
- 2nd floor
- Dimensions :
- 8.6x5.7 p
- Flooring :
- Ceramic tiles
- Other details :
- Heated floor
- Room type :
- Bedroom
- Floor :
- 2nd floor
- Dimensions :
- 21.1x22.11 p
- Flooring :
- Wood
- Other details :
- Room type :
- Bathroom
- Floor :
- 2nd floor
- Dimensions :
- 8.6x5.7 p
- Flooring :
- Ceramic tiles
- Other details :
- Heated floor
- Room type :
- Bedroom
- Floor :
- 2nd floor
- Dimensions :
- 13.2x11.8 p
- Flooring :
- Wood
- Other details :
- Room type :
- Primary bedroom
- Floor :
- 2nd floor
- Dimensions :
- 21.8x23.11 p
- Flooring :
- Wood
- Other details :
- Room type :
- Walk-in closet
- Floor :
- 2nd floor
- Dimensions :
- 11.6x6.8 p
- Flooring :
- Wood
- Other details :
- Room type :
- Bathroom
- Floor :
- 2nd floor
- Dimensions :
- 17.1x11.8 p
- Flooring :
- Ceramic tiles
- Other details :
- Heated floor
- Room type :
- Laundry room
- Floor :
- 2nd floor
- Dimensions :
- 8.10x11.11 p
- Flooring :
- Ceramic tiles
- Other details :
- Room type :
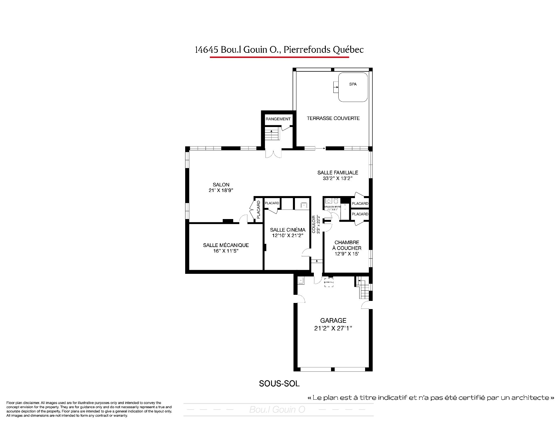
- Living room
- Floor :
- Garden level
- Dimensions :
- 21x18.9 p
- Flooring :
- Flexible floor coverings
- Other details :
- Room type :
- Family room
- Floor :
- Garden level
- Dimensions :
- 33.2x13.2 p
- Flooring :
- Flexible floor coverings
- Other details :
- Room type :
- Bathroom
- Floor :
- Garden level
- Dimensions :
- 7.7x6.7 p
- Flooring :
- Ceramic tiles
- Other details :
- Heated floor
- Room type :
- Bedroom
- Floor :
- Garden level
- Dimensions :
- 12.9x15 p
- Flooring :
- Wood
- Other details :
- Room type :
- Home theater
- Floor :
- Garden level
- Dimensions :
- 12.10x21.3 p
- Flooring :
- Carpet
- Other details :
- Inclusions
- Light fixtures, Curtains + Rods, Refrigerator, Stove, Dishwasher, Washer, Dryer, Cinema furniture, Gazebo, Gas BBQ + Refrigerator, Marine dock, Dressing room cabinets, Walk-in closets (master), Locker room cabinets
Assessments
- Building assessment
- $1,207,200
- Evaluation of land
- $752,700
- Assessment year
- 2026
- Legal warranty
- Sale with legal warranty
Expenses
- Energy cost - General spend
- Amount:$3,340
- Frequency:Yearly
- Municipal Taxes - General spend
- Year:2026
- Amount:$12,164
- Frequency:Yearly
- School taxes - General spend
- Year:2025
- Amount:$1,452
- Frequency:Yearly
Addenda
Discover this stunning waterfront property in Pierrefonds offering an exceptional lifestyle on the sought-after shores of Rivière des Prairies. Featuring 5 bedrooms, 4 bathrooms, and a double garage, this residence seamlessly blends elegance, comfort, and high-end finishes within a serene natural setting.
From the moment you enter, you will be impressed by the generous volumes and remarkable natural light that fills every space. The open-concept main living area is enhanced by abundant windows on multiple sides, showcasing panoramic water views and allowing natural light to pour in throughout the day. The warm and refined living room, complete with a contemporary fireplace, flows effortlessly into the dining area, creating the perfect space for entertaining.
The kitchen, a true centerpiece of the home, boasts a design that is both modern and timeless. It features a large central island with seating, full-height cabinetry, quartz countertops, and high-end integrated appliances, meeting the expectations of the most discerning buyers. Carefully selected materials, elegant lighting fixtures, and ample storage further enhance both functionality and sophistication.
Upstairs, the primary suite offers a true sanctuary with a soothing view of the river. It includes a luxurious ensuite bathroom appointed with high-quality finishes. Two of the three additional bedrooms are generously sized and also feature their own ensuite bathrooms, providing comfort and versatility--ideal for a family or a home office setup.
The garden-level and additional living spaces offer an ideal layout to fully enjoy this exceptional setting. A spacious family room, flooded with natural light thanks to floor-to-ceiling windows, opens directly to the outdoors.
At the rear, the property stands out with direct water access, beautifully landscaped grounds, and a large terrace--perfect for admiring sunsets and enjoying private moments. Whether relaxing or entertaining, every outdoor space has been thoughtfully designed to maximize the waterfront experience.
Located in a sought-after area close to services, schools, and major roadways, this unique property offers the perfect balance between urban living and nature. A rare opportunity for buyers seeking a distinctive lifestyle where luxury, space, and breathtaking views come together harmoniously.
From the moment you enter, you will be impressed by the generous volumes and remarkable natural light that fills every space. The open-concept main living area is enhanced by abundant windows on multiple sides, showcasing panoramic water views and allowing natural light to pour in throughout the day. The warm and refined living room, complete with a contemporary fireplace, flows effortlessly into the dining area, creating the perfect space for entertaining.
The kitchen, a true centerpiece of the home, boasts a design that is both modern and timeless. It features a large central island with seating, full-height cabinetry, quartz countertops, and high-end integrated appliances, meeting the expectations of the most discerning buyers. Carefully selected materials, elegant lighting fixtures, and ample storage further enhance both functionality and sophistication.
Upstairs, the primary suite offers a true sanctuary with a soothing view of the river. It includes a luxurious ensuite bathroom appointed with high-quality finishes. Two of the three additional bedrooms are generously sized and also feature their own ensuite bathrooms, providing comfort and versatility--ideal for a family or a home office setup.
The garden-level and additional living spaces offer an ideal layout to fully enjoy this exceptional setting. A spacious family room, flooded with natural light thanks to floor-to-ceiling windows, opens directly to the outdoors.
At the rear, the property stands out with direct water access, beautifully landscaped grounds, and a large terrace--perfect for admiring sunsets and enjoying private moments. Whether relaxing or entertaining, every outdoor space has been thoughtfully designed to maximize the waterfront experience.
Located in a sought-after area close to services, schools, and major roadways, this unique property offers the perfect balance between urban living and nature. A rare opportunity for buyers seeking a distinctive lifestyle where luxury, space, and breathtaking views come together harmoniously.
Real Estate Brokers and Advisors
Simon Bourgeois
Residential Real Estate Broker (G8491)
Gestion Simon Bourgeois Inc.
Real Estate Agency:
ENGEL & VÖLKERS MONTRÉAL (G7014)
Real Estate Shop ⬩ Brossard
Michaël Luneau
Residential Real Estate Broker (H4923)
Real Estate Agency:
ENGEL & VÖLKERS MONTRÉAL (G7014)
Real Estate Shop ⬩ Brossard