Lot for sale - Saint-David-de-Falardeau$1,189,000 +taxes
$1,189,000 +taxes
Listing broker: Yannick Proulx - Engel & Völkers ● # 25977046
72,057 pc
Description
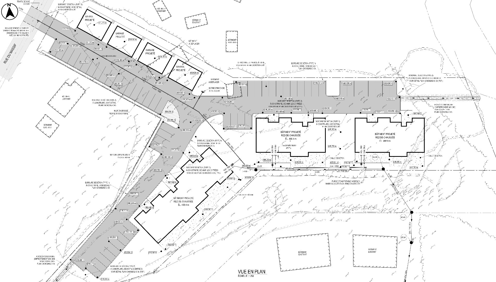
Exceptional lot of approximately 72,057 sq. ft. offering panoramic views of Le Valinouët. Ideally located in the heart of the Monts Valin, in Saint-David-de-Falardeau, this site enjoys a strategic location in a region highly sought after for its 100% natural snow. The area is experiencing significant growth due to the ongoing development of the alpine village. Just steps from L'Éternel Spa, the lot offers privileged access to relaxation facilities, the spa's restaurant, and several nearby entertainment options. A 24-unit condo project, divided into 3 buildings, is available for this site.
Details
- Water supply
- Municipality
- Sewage system
- Municipal sewer
- Topography
- Sloped
- View
- Mountain
- Panoramic
- Zoning
- Residential
- Vacationing area
- Land surface area
- 72,057 pc
- Inclusions
- The plans and studies carried out for the 24-condo project.
Assessments
- Evaluation of land
- $60,400
- Assessment year
- 2025
- Legal warranty
- Sale with exclusion(s) of legal warranty - See listing broker(s)
Expenses
- Municipal Taxes - General spend
- Year:2025
- Amount:$396
- Frequency:Yearly
- School taxes - General spend
- Year:2025
- Amount:$30
- Frequency:Yearly
Addenda
Rare build-ready lot with breathtaking views of the ski mountain, adjacent to L'Éternel Spa and its restaurant.
There is currently very high demand in this area compared to limited market availability.
The site allows for the construction of three (3) buildings totaling 24 condo units: two buildings with 8 units each and one building with 12 units.
A perpetual flood and reserve easement in favor of the public domain was granted between the Ministry of Natural Resources and Wildlife and the Municipality of Saint-David-de-Falardeau on May 10, 2011, under number 27 582.
Option to Purchase the Following Properties (Not Included in the Sale):
L'Éternel Spa: A 200,000 sq. ft. Scandinavian spa located in the heart of the Monts Valin, offering a complete thermal experience with treatments, restaurant, and breathtaking views of Le Valinouët -- all set in an exceptional natural environment with access to the Éternel River. (Centris No. 25136837)
Three luxury domes and four fully equipped mini-cabins, with a development plan already available to add 15 additional accommodation units, on cadastral lots 6 491 398 and 6 469 759 (Centris No. 25432004)
The project has received authorization from the Quebec Ministry of the Environment, the Fight Against Climate Change, Wildlife, and Parks to extend a private water system to service 36 new condo units.
There is currently very high demand in this area compared to limited market availability.
The site allows for the construction of three (3) buildings totaling 24 condo units: two buildings with 8 units each and one building with 12 units.
A perpetual flood and reserve easement in favor of the public domain was granted between the Ministry of Natural Resources and Wildlife and the Municipality of Saint-David-de-Falardeau on May 10, 2011, under number 27 582.
Option to Purchase the Following Properties (Not Included in the Sale):
L'Éternel Spa: A 200,000 sq. ft. Scandinavian spa located in the heart of the Monts Valin, offering a complete thermal experience with treatments, restaurant, and breathtaking views of Le Valinouët -- all set in an exceptional natural environment with access to the Éternel River. (Centris No. 25136837)
Three luxury domes and four fully equipped mini-cabins, with a development plan already available to add 15 additional accommodation units, on cadastral lots 6 491 398 and 6 469 759 (Centris No. 25432004)
The project has received authorization from the Quebec Ministry of the Environment, the Fight Against Climate Change, Wildlife, and Parks to extend a private water system to service 36 new condo units.
Real Estate Broker and Advisor
Yannick Proulx
Commercial Real Estate Broker (G7711)
Yannick Proulx Courtier Immobilier Inc.
Real Estate Agency:
ENGEL & VÖLKERS QUÉBEC (G8468)
Real Estate Shop ⬩ RÉGION DE QUÉBEC