Two or more storey for sale - Mont-Tremblant$2,275,000 +taxes
$2,275,000 +taxes
Listing broker: André Parisien - Tremblant ● # 9214837
4
3+1
1
2
20
3,185 pc
Under construction
Description
Luxury ski-in/ski-out villas on the Versant Soleil side of Tremblant. The 37 alpine villas of Eclipse Tremblant offer a privileged haven of peace where calm and well-being reign. A true sanctuary of tranquility that offers an immersion in nature, all from the comfort of your villa. With access to a multitude of activities! Sports activities: skiing, biking, hiking trails, golf, water sports center, tennis, tobogganing, etc. Cultural activities: concerts, shows, festivals, cruises, Casino Mont-Tremblant, or relaxation activities: spas, massages, yoga, Pilates. FOR INVESTORS: short-term and seasonal rentals permitted.
Details
- Driveway
- Asphalt
- Restrictions/Permissions
- Pets allowed
- Short-term rentals allowed
- Cupboard
- Other (Néolaminé)
- Heating system
- Air circulation
- Electric baseboard units
- Radiant
- Water supply
- Municipality
- Heating energy
- Wood
- Electricity
- Equipment available
- Central air conditioning
- Windows
- Aluminum
- PVC
- Hearth stove
- Wood fireplace
- Garage
- Attached
- Heated
- Single width
- Distinctive features
- Ski-in/Ski-out
- Wooded
- Proximity
- Cegep
- Daycare centre
- Golf
- Bicycle path
- Elementary school
- Alpine skiing
- Cross-country skiing
- Siding
- Wood
- Bathroom / Washroom
- Adjoining to primary bedroom
- Basement
- 6 feet and over
- Finished basement
- Parking (total)
- Outdoor (2)
- Garage (1)
- Sewage system
- Municipal sewer
- Window type
- Crank handle
- Roofing
- Tin
- View
- Mountain
- Zoning
- Residential
- Vacationing area
- Near
- Chemin de la Constellation
- Historical code
- CONS
- Living space
- 3,185 pc
- Number of rooms
- 20
- Number of bedrooms
- 4
- Number of bedrooms above ground
- 4
- Number of rooms in the basement
- 0
- Number of bathrooms
- 3
- Number of half-baths
- 1
- Total number of units
- 6
- Construction distinctive feature
- New
- Building Type
- Attached
- Type of ownership
- Divided
- Type of living space
- As per cadastral plan
- Unit :
- 1
- Number of rooms
- 20
- Number of bedrooms
- 4
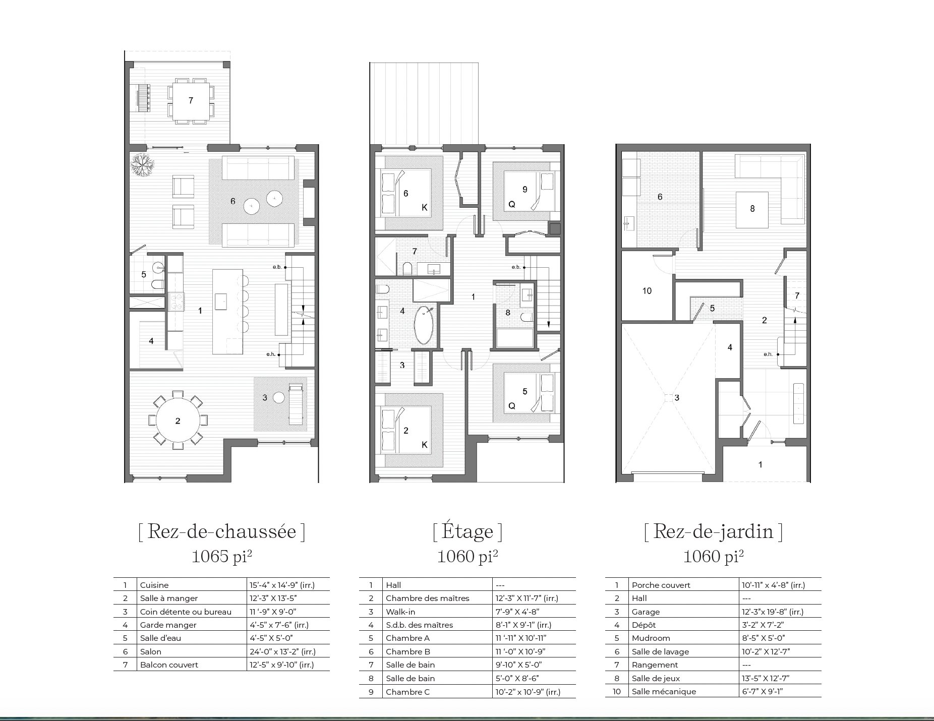
Room type
Floor
Dimensions
Flooring
Fireplace
Other details
- Room type :
- Kitchen
- Floor :
- 1st level/Ground floor
- Dimensions :
- 15.4x14.9 p
- Flooring :
- Wood
- Fireplace :
- Other details :
- Room type :
- Dining room
- Floor :
- 1st level/Ground floor
- Dimensions :
- 12.3x13.5 p
- Flooring :
- Wood
- Fireplace :
- Other details :
- Room type :
- Den
- Floor :
- 1st level/Ground floor
- Dimensions :
- 11.9x9.0 p
- Flooring :
- Wood
- Fireplace :
- Other details :
- Room type :
- Storage
- Floor :
- 1st level/Ground floor
- Dimensions :
- 4.5x7.6 p
- Flooring :
- Wood
- Fireplace :
- Other details :
- Room type :
- Washroom
- Floor :
- 1st level/Ground floor
- Dimensions :
- 4.5x5.0 p
- Flooring :
- Ceramic tiles
- Fireplace :
- Other details :
- Room type :
- Living room
- Floor :
- 1st level/Ground floor
- Dimensions :
- 24.0x13.2 p
- Flooring :
- Wood
- Fireplace :
- Other details :
- Wood-burning fireplace
- Room type :
- Covered balcony
- Floor :
- 1st level/Ground floor
- Dimensions :
- 12.5x9.10 p
- Flooring :
- Wood
- Fireplace :
- Other details :
- Room type :
- Primary bedroom
- Floor :
- 2nd floor
- Dimensions :
- 12.3x11.7 p
- Flooring :
- Wood
- Fireplace :
- Other details :
- Room type :
- Walk-in closet
- Floor :
- 2nd floor
- Dimensions :
- 7.9x4.8 p
- Flooring :
- Wood
- Fireplace :
- Other details :
- Room type :
- Bathroom
- Floor :
- 2nd floor
- Dimensions :
- 8.1x9.1 p
- Flooring :
- Ceramic tiles
- Fireplace :
- Other details :
- Room type :
- Bedroom
- Floor :
- 2nd floor
- Dimensions :
- 11.11x10.11 p
- Flooring :
- Wood
- Fireplace :
- Other details :
- Room type :
- Bedroom
- Floor :
- 2nd floor
- Dimensions :
- 11.0x10.9 p
- Flooring :
- Wood
- Fireplace :
- Other details :
- Room type :
- Bathroom
- Floor :
- 2nd floor
- Dimensions :
- 9.10x5.0 p
- Flooring :
- Ceramic tiles
- Fireplace :
- Other details :
- Room type :
- Bathroom
- Floor :
- 2nd floor
- Dimensions :
- 5.0x8.6 p
- Flooring :
- Ceramic tiles
- Fireplace :
- Other details :
- Room type :
- Bedroom
- Floor :
- 2nd floor
- Dimensions :
- 10.2x10.9 p
- Flooring :
- Wood
- Fireplace :
- Other details :
- Room type :
- Playroom
- Floor :
- Garden level
- Dimensions :
- 13.5x12.7 p
- Flooring :
- Carpet
- Fireplace :
- Other details :
- Room type :
- Walk-in closet
- Floor :
- Garden level
- Dimensions :
- 8.5x5.0 p
- Flooring :
- Carpet
- Fireplace :
- Other details :
- Room type :
- mecanic room
- Floor :
- Garden level
- Dimensions :
- 6.7x9.1 p
- Flooring :
- Concrete
- Fireplace :
- Other details :
- Room type :
- Laundry room
- Floor :
- Garden level
- Dimensions :
- 10.2x12.7 p
- Flooring :
- Ceramic tiles
- Fireplace :
- Other details :
- Room type :
- Hallway
- Floor :
- Garden level
- Dimensions :
- 10.11x4.8 p
- Flooring :
- Ceramic tiles
- Fireplace :
- Other details :
- Inclusions
- The information note includes the building's inclusions and features. It is available upon request.
Assessments
- Legal warranty
- Sale with legal warranty
Expenses
- Co-ownership fees - General spend
- Amount:$12,012
- Frequency:Yearly
- Municipal Taxes - General spend
- Frequency:Yearly
- School taxes - General spend
- Frequency:Yearly
Addenda
Villa Polaris, building G.
The photos are artist's renderings and may differ from reality.
The photos are artist's renderings and may differ from reality.