Maison à vendre - Québec (La Haute-Saint-Charles)1 350 000 $
1 350 000 $
Courtier inscripteur : Alexandra Labrie - Engel & Völkers ● # 10596954
5
2
3
2
14
1 436 pc
11 130 pc
1973
Description
Superbe résidence entièrement rénovée offrant 5 chambres, dont deux de style loft. Maison spacieuse et lumineuse, idéale pour une grande famille. Cuisine avec garde-manger walk-in. Terrain intime de plus de 11 000 pi² avec aménagement paysager haut de gamme, grande piscine creusée et spa. Garage triple et façade moderne en bois et pierre. Propriété clé en main où confort, espace et élégance se rencontrent.
Détails
- Mode de chauffage
- Air soufflé
- Approvisionnement en eau
- Municipalité
- Énergie pour le chauffage
- Électricité
- Fondation
- Béton coulé
- Foyers-poêles
- Autre (2 foyers)
- Foyer au bois
- Garage
- Attaché
- Chauffé
- Double largeur ou plus
- Piscine
- Autre (Spa)
- Chauffée
- Creusée
- Salle de bains/salle d'eau
- Douche indépendante
- Sous-sol
- 6 pieds et plus
- Totalement aménagé
- Stationnement (total)
- Extérieur (2)
- Au garage (3)
- Système d'égouts
- Municipal
- Aménagement du terrain
- Clôturé
- Paysager
- Toiture
- Autre (2015)
- Bardeaux d'asphalte
- Zonage
- Résidentiel
- Superficie du terrain
- 11 130 pc
- Année de construction
- 1973
- Superficie habitable
- 1 436 pc
- Nombre de pièces
- 14
- Nombre de chambres
- 5
- Nombre de chambres hors-sol
- 3
- Nombre de chambres au sous-sol
- 2
- Nombre de salles de bains
- 2
- Nombre de salles d'eau
- 0
- Type de bâtiment
- Détaché (Isolé)
- Unité :
- 1
- Nombre de pièces
- 14
- Nombre de chambres
- 5
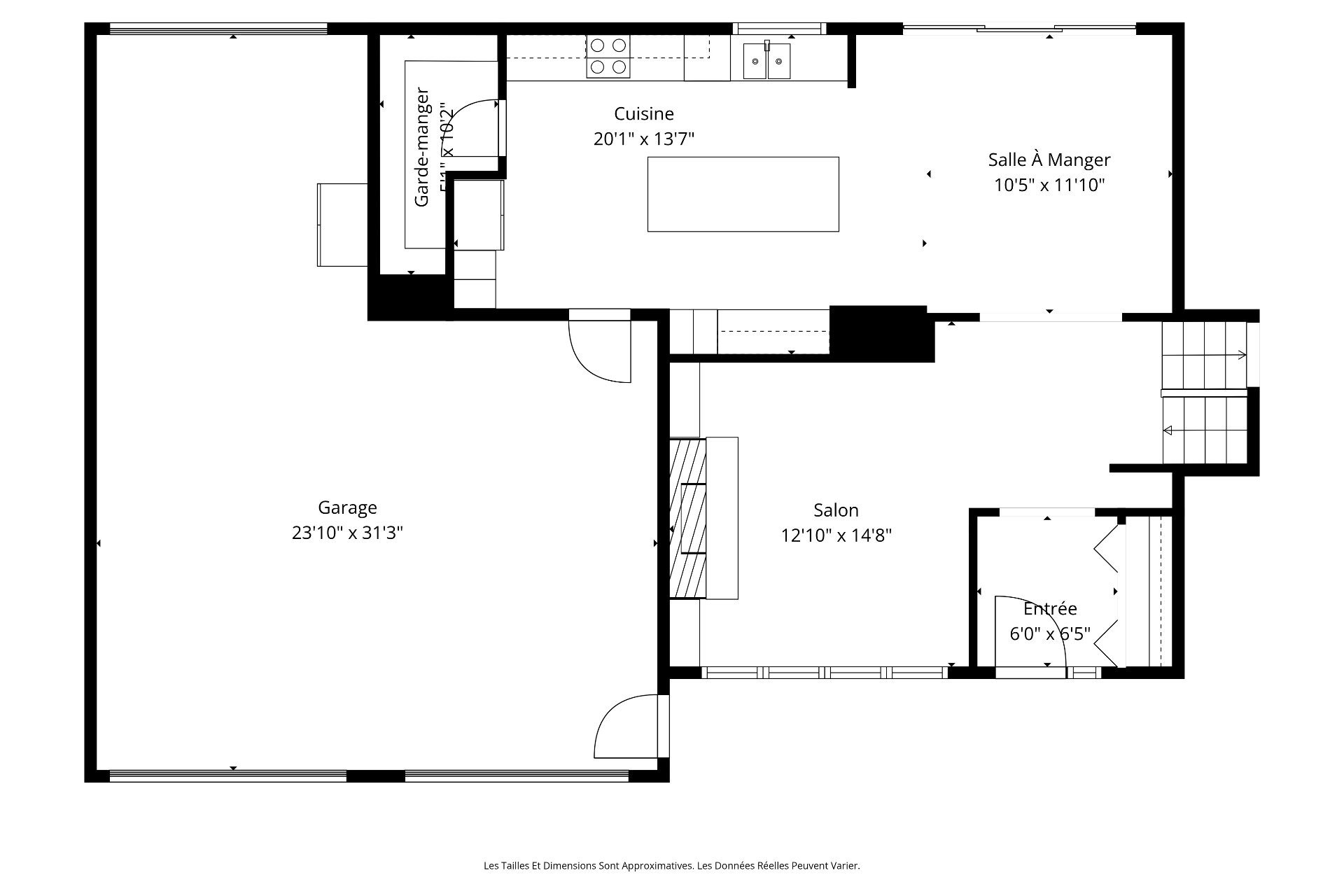
Type de pièce
Étage
Dimensions
Plancher
Foyer
- Type de pièce :
- Hall d'entrée/Vestibule
- Étage :
- 1er niveau/RDC
- Dimensions :
- 6x6.5 p
- Plancher :
- Céramique
- Foyer :
- Type de pièce :
- Salon
- Étage :
- 1er niveau/RDC
- Dimensions :
- 12.1x14.8 p
- Plancher :
- Bois
- Foyer :
- Type de pièce :
- Salle à manger
- Étage :
- 1er niveau/RDC
- Dimensions :
- 10.5x11.1 p
- Plancher :
- Céramique
- Foyer :
- Type de pièce :
- Cuisine
- Étage :
- 1er niveau/RDC
- Dimensions :
- 20.1x13.7 p
- Plancher :
- Céramique
- Foyer :
- Type de pièce :
- Chambre à coucher principale
- Étage :
- 1er niveau/RDC
- Dimensions :
- 10.4x15.1 p
- Plancher :
- Bois
- Foyer :
- Type de pièce :
- Chambre à coucher
- Étage :
- 1er niveau/RDC
- Dimensions :
- 10.1x11.1 p
- Plancher :
- Bois
- Foyer :
- Type de pièce :
- Chambre à coucher
- Étage :
- 1er niveau/RDC
- Dimensions :
- 12.1x13.5 p
- Plancher :
- Bois
- Foyer :
- Type de pièce :
- Salle de bains
- Étage :
- 1er niveau/RDC
- Dimensions :
- 10.6x10.3 p
- Plancher :
- Céramique
- Foyer :
- Type de pièce :
- Salon
- Étage :
- Sous-sol
- Dimensions :
- 19x11.6 p
- Plancher :
- Bois
- Foyer :
- Type de pièce :
- Salle de bains
- Étage :
- Sous-sol
- Dimensions :
- 8.4x7.4 p
- Plancher :
- Céramique
- Foyer :
- Type de pièce :
- Chambre à coucher
- Étage :
- Sous-sol
- Dimensions :
- 21.6x19.5 p
- Plancher :
- Bois
- Foyer :
- Type de pièce :
- Chambre à coucher
- Étage :
- Sous-sol 2
- Dimensions :
- 21x10.1 p
- Plancher :
- Céramique
- Foyer :
- Type de pièce :
- Boudoir
- Étage :
- Sous-sol 2
- Dimensions :
- 9.1x9 p
- Plancher :
- Céramique
- Foyer :
- Type de pièce :
- Salle de lavage
- Étage :
- Sous-sol 2
- Dimensions :
- 9.7x8.4 p
- Plancher :
- Céramique
- Foyer :
- Type de pièce :
- Atelier
- Étage :
- Sous-sol 2
- Dimensions :
- 10.7x11.5 p
- Plancher :
- Béton
- Foyer :
Évaluations
- Évaluation du bâtiment
- 430 000 $
- Évaluation du terrain
- 180 000 $
- Année de l'évaluation
- 2025
- Garantie légale
- Vente avec garantie légale
Dépenses
- Taxes municipales - Dépense générale
- Année:2025
- Montant:5 013 $
- Fréquence:Annuel
- Taxes scolaires - Dépense générale
- Année:2025
- Montant:392 $
- Fréquence:Annuel
Addenda
Magnifique résidence entièrement rénovée, mariant chaleur moderne et finitions haut de gamme. Son architecture intemporelle et sa façade soignée, mettant en valeur le bois et la pierre, annoncent d'emblée une demeure d'exception.
À l'intérieur, vous découvrirez une maison spacieuse comptant 5 chambres à coucher, dont deux de style loft offrant des espaces polyvalents idéaux pour adolescents, invités ou bureaux privés. Chaque niveau a été repensé pour maximiser le confort et le mode de vie familial, permettant à chacun de profiter de son intimité.
La cuisine, véritable coeur de la maison, est complétée par un garde-manger walk-in -- un atout rare et recherché. Les matériaux, le design et la luminosité naturelle contribuent à une ambiance chaleureuse et luxueuse.
Implantée sur un terrain intime de plus de 11 000 pi², la cour arrière se démarque par un aménagement paysager remarquable, une grande piscine creusée et un spa, créant un espace de détente incomparable. Le vaste stationnement et le garage triple ajoutent fonctionnalité et prestige.
Parfaite pour une grande famille ou pour ceux qui recherchent de l'espace, du confort et une propriété clé en main où chaque détail a été soigneusement pensé.
Une occasion rare d'acquérir une maison de cette envergure, alliant élégance, modernité et tranquillité.
À l'intérieur, vous découvrirez une maison spacieuse comptant 5 chambres à coucher, dont deux de style loft offrant des espaces polyvalents idéaux pour adolescents, invités ou bureaux privés. Chaque niveau a été repensé pour maximiser le confort et le mode de vie familial, permettant à chacun de profiter de son intimité.
La cuisine, véritable coeur de la maison, est complétée par un garde-manger walk-in -- un atout rare et recherché. Les matériaux, le design et la luminosité naturelle contribuent à une ambiance chaleureuse et luxueuse.
Implantée sur un terrain intime de plus de 11 000 pi², la cour arrière se démarque par un aménagement paysager remarquable, une grande piscine creusée et un spa, créant un espace de détente incomparable. Le vaste stationnement et le garage triple ajoutent fonctionnalité et prestige.
Parfaite pour une grande famille ou pour ceux qui recherchent de l'espace, du confort et une propriété clé en main où chaque détail a été soigneusement pensé.
Une occasion rare d'acquérir une maison de cette envergure, alliant élégance, modernité et tranquillité.
Courtier immobilier
Alexandra Labrie
Courtier immobilier résidentiel (G9482)
Alexandra Labrie Inc.
Agence immobilière :
ENGEL & VÖLKERS QUÉBEC (G8468)
Boutique immobilière ⬩ RÉGION DE QUÉBEC