Maison à vendre - Beaupré1 139 500 $ +taxes
1 139 500 $ +taxes
Courtiers inscripteurs : Marie-Hélène Poulin - Engel & Völkers ● François Leroux - Engel & Völkers ● # 10743145
3
2+1
2
14
8 734 pc
À construire
Description
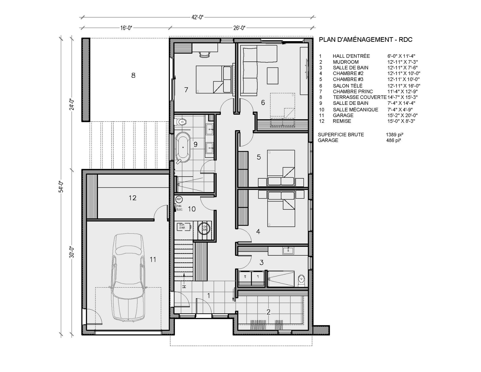
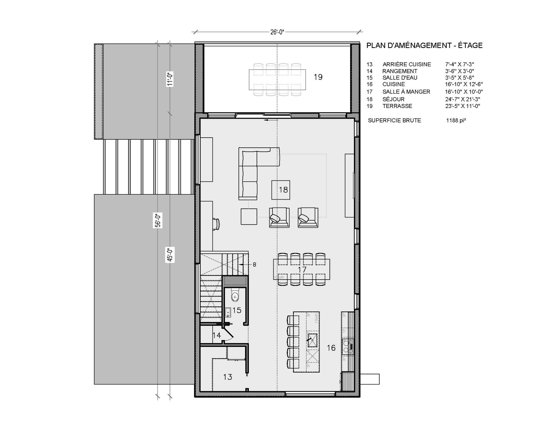
Situé dans le quartier FYRA, ce magnifique terrain boisé offre une multitude de possibilités pour concrétiser la maison de vos rêves, en parfaite harmonie avec la nature. Et si le modèle Ockholm,signé TALO Plans,y correspondait parfaitement ? Cette résidence au design nordique épuré maximise la lumière naturelle grâce à de grandes fenêtres offrant vues et intimité. Le rez-de-jardin est dédié aux chambres, créant un espace de repos paisible. À l'étage,l'aire de vie lumineuse s'ouvre sur une terrasse couverte, prolongeant l'intérieur vers l'extérieur, tandis qu'une terrasse privée dessert la chambre principale. Terrain valeur de 169 452$+tx
Détails
- Allée
- Non Pavée
- Armoires
- Mélamine
- Mode de chauffage
- Plinthes électriques
- Approvisionnement en eau
- Municipalité
- Énergie pour le chauffage
- Électricité
- Fenêtres
- PVC
- Fondation
- Béton coulé
- Particularités
- Aucun voisin à l'arrière
- Boisé
- Proximité
- Autoroute/Voie rapide
- Garderie/CPE
- Golf
- École primaire
- Ski alpin
- École secondaire
- Ski de fond
- Sentier de motoneige
- Sentier de VTT
- Salle de bains/salle d'eau
- Attenante à la chambre principale
- Douche indépendante
- Sous-sol
- Non aménagé
- Stationnement (total)
- Extérieur (2)
- Système d'égouts
- Municipal
- Type de fenêtre
- Manivelle
- Toiture
- Tôle
- Topographie
- Plat
- Vue
- Sur la montagne
- Zonage
- Résidentiel
- Villégiature
- Superficie du terrain
- 8 734 pc
- Code historique
- ACONS
- Superficie du bâtiment
- 2 577 pc
- Nombre de pièces
- 14
- Nombre de chambres
- 3
- Nombre de chambres hors-sol
- 3
- Nombre de chambres au sous-sol
- 0
- Nombre de salles de bains
- 2
- Nombre de salles d'eau
- 1
- Particularité de la construction
- Neuve
- Type de bâtiment
- Jumelé
- Unité :
- 1
- Nombre de pièces
- 14
- Nombre de chambres
- 3
Type de pièce
Étage
Dimensions
Plancher
- Type de pièce :
- Hall d'entrée/Vestibule
- Étage :
- 1er niveau/RDC
- Dimensions :
- 6.0x11.4 p
- Plancher :
- Céramique
- Type de pièce :
- Penderie (Walk-in)
- Étage :
- 1er niveau/RDC
- Dimensions :
- 12.11x7.3 p
- Plancher :
- Céramique
- Type de pièce :
- Salle de bains
- Étage :
- 1er niveau/RDC
- Dimensions :
- 12.11x7.6 p
- Plancher :
- Céramique
- Type de pièce :
- Chambre à coucher
- Étage :
- 1er niveau/RDC
- Dimensions :
- 12.11x10.0 p
- Plancher :
- Bois
- Type de pièce :
- Chambre à coucher
- Étage :
- 1er niveau/RDC
- Dimensions :
- 12.11x10.0 p
- Plancher :
- Bois
- Type de pièce :
- Salon
- Étage :
- 1er niveau/RDC
- Dimensions :
- 12.11x16.0 p
- Plancher :
- Bois
- Type de pièce :
- Chambre à coucher principale
- Étage :
- 1er niveau/RDC
- Dimensions :
- 11.4x12.9 p
- Plancher :
- Bois
- Type de pièce :
- Terrasse couverte
- Étage :
- 1er niveau/RDC
- Dimensions :
- 14.7x15.3 p
- Plancher :
- Béton
- Type de pièce :
- Salle de bains
- Étage :
- 1er niveau/RDC
- Dimensions :
- 7.4x14.4 p
- Plancher :
- Bois
- Type de pièce :
- Salle mécanique
- Étage :
- 1er niveau/RDC
- Dimensions :
- 7.4x4.9 p
- Plancher :
- Bois
- Type de pièce :
- Arrière cuisine
- Étage :
- 2ième étage
- Dimensions :
- 7.4x7.3 p
- Plancher :
- Céramique
- Type de pièce :
- Rangement
- Étage :
- 2ième étage
- Dimensions :
- 3.6x3.0 p
- Plancher :
- Bois
- Type de pièce :
- Salle d'eau
- Étage :
- Sous-sol
- Dimensions :
- 3.5x5.8 p
- Plancher :
- Céramique
- Type de pièce :
- Cuisine
- Étage :
- Sous-sol
- Dimensions :
- 16.10x12.6 p
- Plancher :
- Bois
- Type de pièce :
- Salle à manger
- Étage :
- Sous-sol
- Dimensions :
- 16.10x10.0 p
- Plancher :
- Bois
- Type de pièce :
- Salon
- Étage :
- Sous-sol
- Dimensions :
- 24.7x21.3 p
- Plancher :
- Bois
- Type de pièce :
- Terrasse couverte
- Étage :
- 2ième étage
- Dimensions :
- 23.5x11.0 p
- Plancher :
- Non défini
- Inclusions
- Devis de construction à venir.
- Exclusions
- Devis de construction à venir.
Évaluations
- Garantie légale
- Vente avec garantie légale
Dépenses
- Coût d'énergie - Dépense générale
- Montant:1 $
- Fréquence:Annuel
- Taxes municipales - Dépense générale
- Fréquence:Annuel
- Taxes scolaires - Dépense générale
- Fréquence:Annuel
Addenda
Les plans présentés sont une création originale et demeurent la propriété intellectuelle exclusive du concepteur architectural TALO. Toute reproduction, diffusion ou utilisation à des fins autres que celles prévues dans le cadre du projet est strictement interdite sans l'autorisation écrite de TALO. Le prix indiqué est un prix estimé, à partir de [montant], sous réserve de modifications selon les choix de finition et les conditions du projet.
Le présent mandat vise exclusivement la vente des terrains. Les courtiers ne détiennent aucun mandat relatif à la vente ou à la construction des bâtiments. Les modèles de maisons présentés, incluant ceux conçus par TALO Plans, le sont à titre indicatif seulement, afin de permettre aux acheteurs de se projeter quant au potentiel de construction des terrains. Ils ne constituent ni une offre de vente ni un engagement contractuel quant à un projet de construction.
Le présent mandat vise exclusivement la vente des terrains. Les courtiers ne détiennent aucun mandat relatif à la vente ou à la construction des bâtiments. Les modèles de maisons présentés, incluant ceux conçus par TALO Plans, le sont à titre indicatif seulement, afin de permettre aux acheteurs de se projeter quant au potentiel de construction des terrains. Ils ne constituent ni une offre de vente ni un engagement contractuel quant à un projet de construction.
Courtiers immobiliers
Marie-Hélène Poulin
Courtier immobilier résidentiel et commercial (D4214)
Agence immobilière :
ENGEL & VÖLKERS QUÉBEC (G8468)
Boutique immobilière ⬩ RÉGION DE QUÉBEC
François Leroux
Courtier immobilier résidentiel et commercial (G2493)
François Leroux Courtier Inc.
Agence immobilière :
ENGEL & VÖLKERS QUÉBEC (G8468)
Boutique immobilière ⬩ RÉGION DE QUÉBEC