Maison à vendre - Sainte-Brigitte-de-Laval694 000 $ +taxes
694 000 $ +taxes
Courtier inscripteur : François Leroux - Engel & Völkers ● # 12663605
3
1+1
1
11
1 510 pc
13 401,4 mc
À construire
Description
À construire -Qualité Chabot Construction. Offrez-vous le privilège d'une vie en harmonie avec la nature ! Érigée sur un terrain majestueux de plus de 144 000 pi², cette future demeure promet espace, intimité et sérénité, dans un secteur paisible où la forêt murmure et les voisins se devinent à peine. À quelques jets de pierre de la rivière Montmorency, cette résidence se distingue par la qualité de ses matériaux : planchers de bois et céramique, armoires en polymère, comptoirs de pierre, thermopompe et garage 14 × 24 pi.Un lieu idéal pour ceux qui rêvent de vivre au rythme de la nature.
Détails
- Allée
- Non Pavée
- Armoires
- Autre (polymère comptoir pierre)
- Mode de chauffage
- Plinthes électriques
- Approvisionnement en eau
- Puits artésien
- Énergie pour le chauffage
- Électricité
- Fenêtres
- PVC
- Fondation
- Béton coulé
- Garage
- Attaché
- Proximité
- Garderie/CPE
- Golf
- École primaire
- Revêtements
- Fibre pressée
- Salle de bains/salle d'eau
- Douche indépendante
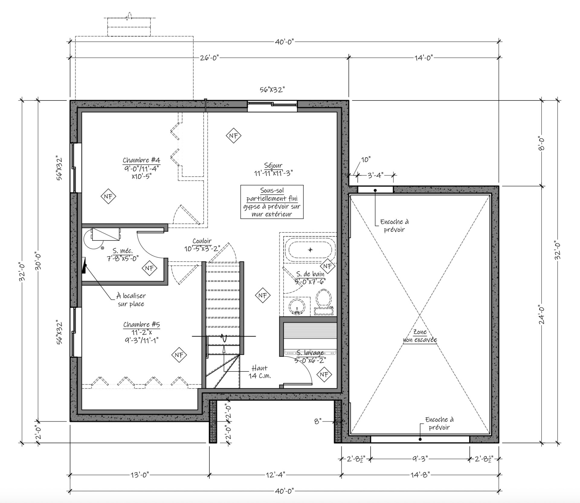
- Sous-sol
- 6 pieds et plus
- Non aménagé
- Stationnement (total)
- Au garage (1)
- Système d'égouts
- Champ d'épuration
- Fosse septique
- Particularités
- Boisé
- Type de fenêtre
- Manivelle
- Toiture
- Bardeaux d'asphalte
- Vue
- Sur la montagne
- Zonage
- Résidentiel
- Superficie du terrain
- 13 401,4 mc
- Façade du terrain
- 123.73 m
- Profondeur du terrain
- 102.22 m
- Code historique
- ACONS
- Superficie du bâtiment
- 755 pc
- Superficie habitable
- 1 510 pc
- Nombre de pièces
- 11
- Nombre de chambres
- 3
- Nombre de chambres hors-sol
- 3
- Nombre de chambres au sous-sol
- 0
- Nombre de salles de bains
- 1
- Nombre de salles d'eau
- 1
- Particularité de la construction
- Neuve
- Type de bâtiment
- Détaché (Isolé)
- Unité :
- 1
- Nombre de pièces
- 11
- Nombre de chambres
- 3
Type de pièce
Étage
Dimensions
Plancher
- Type de pièce :
- Hall d'entrée/Vestibule
- Étage :
- 1er niveau/RDC
- Dimensions :
- 9.5x5.2 p
- Plancher :
- Céramique
- Type de pièce :
- Salon
- Étage :
- 1er niveau/RDC
- Dimensions :
- 11.7x15.3 p
- Plancher :
- Bois
- Type de pièce :
- Salle à manger
- Étage :
- 1er niveau/RDC
- Dimensions :
- 11.1x13.4 p
- Plancher :
- Bois
- Type de pièce :
- Cuisine
- Étage :
- 1er niveau/RDC
- Dimensions :
- 12.7x13 p
- Plancher :
- Bois
- Type de pièce :
- Salle d'eau
- Étage :
- 1er niveau/RDC
- Dimensions :
- 5.3x5.0 p
- Plancher :
- Céramique
- Type de pièce :
- Chambre à coucher principale
- Étage :
- 2ième étage
- Dimensions :
- 13.4x14.8 p
- Plancher :
- Bois
- Type de pièce :
- Chambre à coucher
- Étage :
- 2ième étage
- Dimensions :
- 10.11x10 p
- Plancher :
- Bois
- Type de pièce :
- Chambre à coucher
- Étage :
- 2ième étage
- Dimensions :
- 10.11x10 p
- Plancher :
- Bois
- Type de pièce :
- Salle de bains
- Étage :
- 2ième étage
- Dimensions :
- 12.8x13.8 p
- Plancher :
- Céramique
- Type de pièce :
- Salle de lavage
- Étage :
- Sous-sol
- Dimensions :
- 5x6.2 p
- Plancher :
- Béton
- Type de pièce :
- Rangement
- Étage :
- Sous-sol
- Dimensions :
- 7.8x5 p
- Plancher :
- Béton
Évaluations
- Évaluation du terrain
- 96 400 $
- Année de l'évaluation
- 2025
- Garantie légale
- Vente avec garantie légale
Dépenses
- Coût d'énergie - Dépense générale
- Montant:1 000 $
- Fréquence:Annuel
- Autres dépenses:frais entretien rue approx.
- Taxes municipales - Dépense générale
- Année:2025
- Montant:1 408 $
- Fréquence:Annuel
- Taxes scolaires - Dépense générale
- Année:2025
- Montant:56 $
- Fréquence:Annuel
Courtier immobilier
François Leroux
Courtier immobilier résidentiel et commercial (G2493)
François Leroux Courtier Inc.
Agence immobilière :
ENGEL & VÖLKERS QUÉBEC (G8468)
Boutique immobilière ⬩ RÉGION DE QUÉBEC