Maison à vendre - Sainte-Angèle-de-Monnoir1 699 000 $
1 699 000 $
Courtiers inscripteurs : Cédrick Benoit - Engel & Völkers ● Vincent Fortin - Engel & Völkers ● # 15009616
3
3+1
3
10
14
662 600 pc
1970
Description
DOMAINE UNIQUE AVEC ÉRABLIÈRE- UN HAVRE DE PAIX AUX MULTIPLES POSSIBILITÉS Découvrez ce domaine exceptionnel niché sur un terrain de plus de 662 000 pi² (plus de 15 acres), où tranquillité, intimité et nature s'unissent pour offrir un cadre de vie absolument incomparable. Située à moins de 5 minutes de l'autoroute 10, cette propriété rare marie parfaitement le charme de la campagne et la proximité des services. Au coeur du domaine se trouve une magnifique érablière de 1 500 entailles, peuplée d'érables matures, dont plusieurs sont centenaires. L'exploitation acéricole est facilitée par une cabane à sucre entièrement rénovée en 2022, équipée
Détails
- Allée
- Non Pavée
- Armoires
- Bois
- Mode de chauffage
- Air soufflé
- Approvisionnement en eau
- Municipalité
- Énergie pour le chauffage
- Bois
- Électricité
- Équipement disponible
- Installation aspirateur central
- Climatiseur mural
- Porte de garage électrique
- Fenêtres
- Aluminium
- PVC
- Fondation
- Béton coulé
- Foyers-poêles
- Foyer au bois
- Garage
- Attaché
- Détaché
- Double largeur ou plus
- Simple largeur
- Particularités
- Aucun voisin à l'arrière
- Boisé
- Proximité
- Autoroute/Voie rapide
- Golf
- Revêtements
- Pierre
- Salle de bains/salle d'eau
- Attenante à la chambre principale
- Douche indépendante
- Sous-sol
- Totalement aménagé
- Stationnement (total)
- Extérieur (10)
- Au garage (3)
- Système d'égouts
- Champ d'épuration
- Fosse septique
- Aménagement du terrain
- Paysager
- Type de fenêtre
- Manivelle
- Porte-fenêtre
- Toiture
- Bardeaux d'asphalte
- Topographie
- Plat
- Zonage
- Agricole
- Superficie du terrain
- 662 600 pc
- Façade du terrain
- 1101 p
- Profondeur du terrain
- 1686 p
- Année de construction
- 1970
- Façade du bâtiment
- 50 p
- Profondeur du bâtiment
- 40 p
- Nombre de pièces
- 14
- Nombre de chambres
- 3
- Nombre de chambres hors-sol
- 2
- Nombre de chambres au sous-sol
- 1
- Nombre de salles de bains
- 3
- Nombre de salles d'eau
- 1
- Type de bâtiment
- Détaché (Isolé)
- Unité :
- 1
- Nombre de pièces
- 14
- Nombre de chambres
- 3
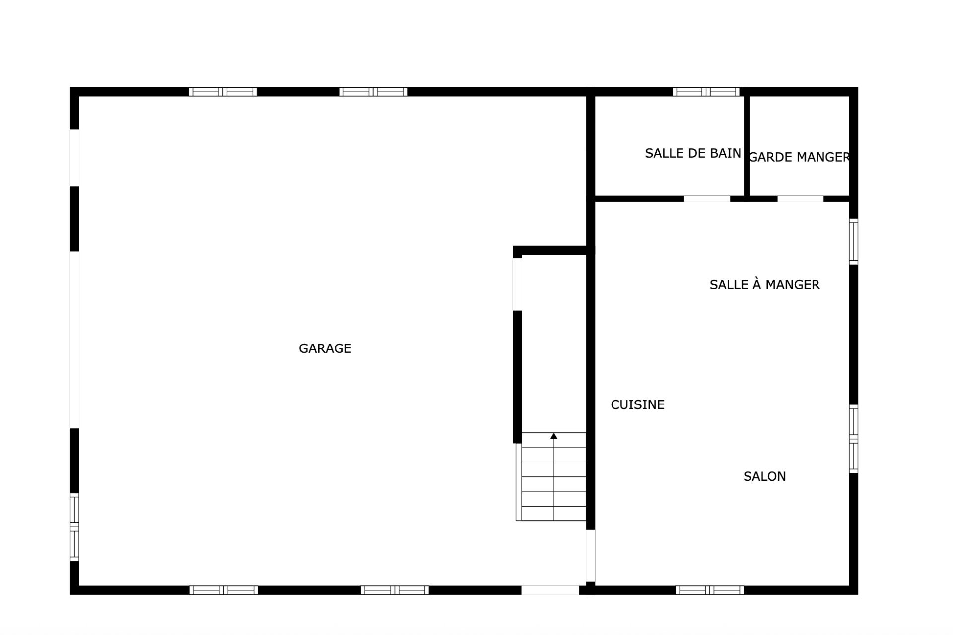
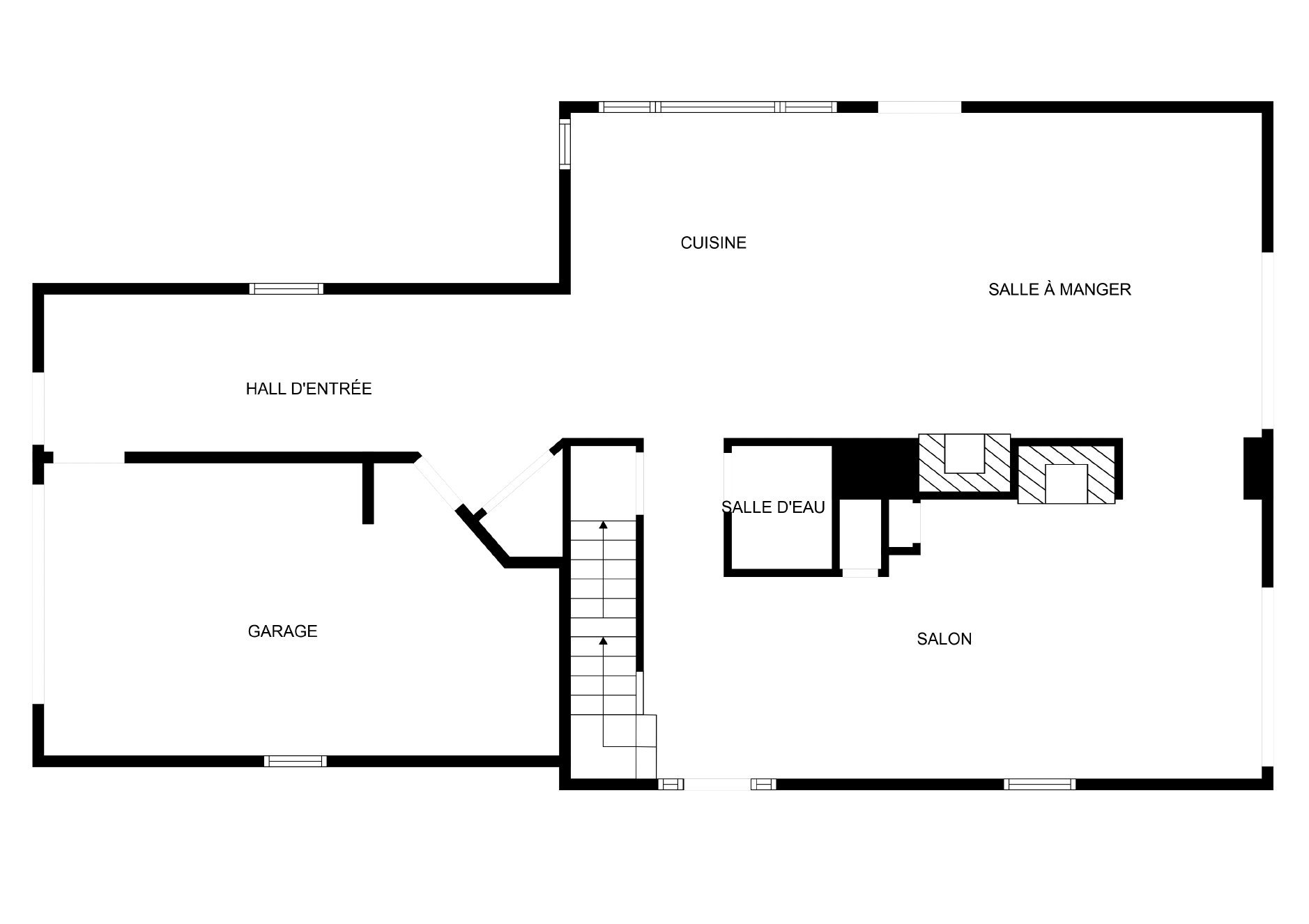
Type de pièce
Étage
Dimensions
Plancher
Autres détails
- Type de pièce :
- Hall d'entrée/Vestibule
- Étage :
- 1er niveau/RDC
- Dimensions :
- 16.2x7.6 p
- Plancher :
- Céramique
- Autres détails :
- Type de pièce :
- Cuisine
- Étage :
- 1er niveau/RDC
- Dimensions :
- 15x13.8 p
- Plancher :
- Céramique
- Autres détails :
- Type de pièce :
- Salle à manger
- Étage :
- 1er niveau/RDC
- Dimensions :
- 16.3x15 p
- Plancher :
- Bois
- Autres détails :
- Type de pièce :
- Salon
- Étage :
- 1er niveau/RDC
- Dimensions :
- 27.9x13.1 p
- Plancher :
- Bois
- Autres détails :
- Type de pièce :
- Salle d'eau
- Étage :
- 1er niveau/RDC
- Dimensions :
- 5.4x4.6 p
- Plancher :
- Céramique
- Autres détails :
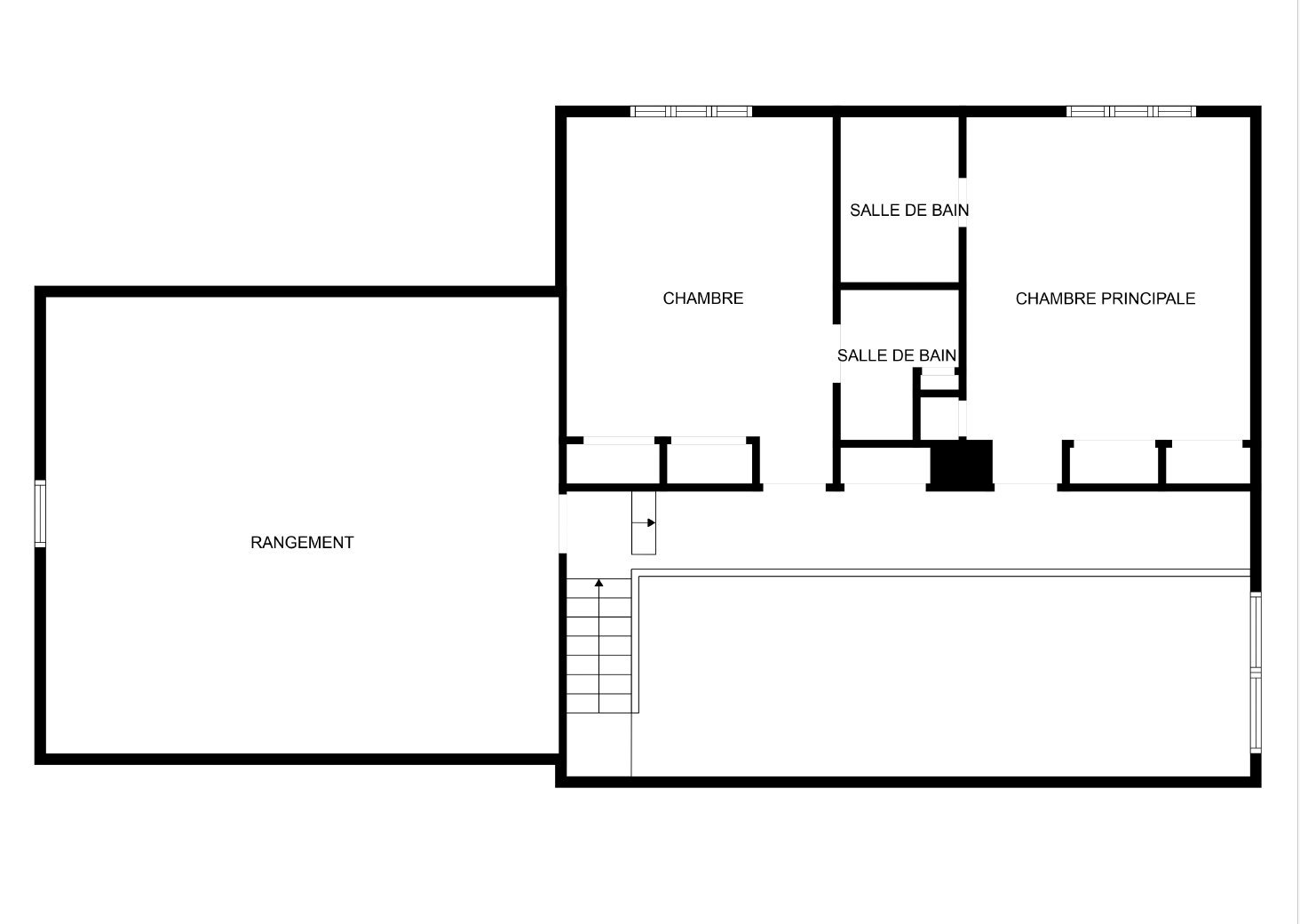
- Type de pièce :
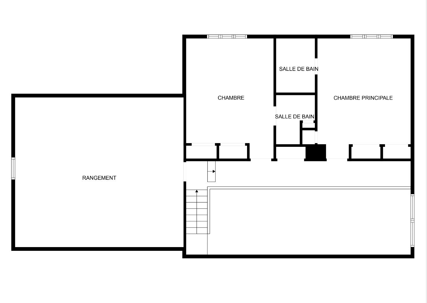
- Chambre à coucher principale
- Étage :
- 2ième étage
- Dimensions :
- 14.11x13.2 p
- Plancher :
- Bois
- Autres détails :
- Type de pièce :
- Salle de bains
- Étage :
- 2ième étage
- Dimensions :
- 7.7x5.4 p
- Plancher :
- Céramique
- Autres détails :
- Type de pièce :
- Chambre à coucher
- Étage :
- 2ième étage
- Dimensions :
- 15x12.1 p
- Plancher :
- Bois
- Autres détails :
- Type de pièce :
- Salle de bains
- Étage :
- 2ième étage
- Dimensions :
- 7.2x5 p
- Plancher :
- Céramique
- Autres détails :
- Type de pièce :
- Rangement
- Étage :
- 2ième étage
- Dimensions :
- 25.2x11 p
- Plancher :
- Bois
- Autres détails :
- dessus du garage
- Type de pièce :
- Salle familiale
- Étage :
- Sous-sol
- Dimensions :
- 20.6x14.2 p
- Plancher :
- Céramique
- Autres détails :
- Type de pièce :
- Chambre à coucher
- Étage :
- Sous-sol
- Dimensions :
- 13.8x13.1 p
- Plancher :
- Céramique
- Autres détails :
- Type de pièce :
- Salle de bains
- Étage :
- Sous-sol
- Dimensions :
- 7.7x7.4 p
- Plancher :
- Céramique
- Autres détails :
- Type de pièce :
- Rangement
- Étage :
- Sous-sol
- Dimensions :
- 12.9x6.7 p
- Plancher :
- Autres détails :
- Inclusions
- Bouilloire de la cabane à sucre, poêle, sertisseuse, cabanon, ensemble de patio, 3 bancs extérieur, balançoire, plaque chauffante, four encastré, réfrigérateur, micro-ondes, lave-vaisselle, tabourets de cuisine, BBQ, luminaires, rideaux et tringles, stores, 2 poêles combustion lente, aspirateur central et acc., 2 air conditionné, fournaise bois, armoire blanche au sous-sol, tapis de cuisine, 3 réservoirs eau chaude, système de traitement d'eau.
- Exclusions
- Tracteur New Holland, tracteur pelouse, remorque, VTT Honda, Outils, échafauds, miroir salon, réfrigérateur garage, laveuse, sécheuses, 2 téléviseurs, cinéma maison, meubles, bois de chauffage.
Évaluations
- Évaluation du bâtiment
- 489 800 $
- Évaluation du terrain
- 255 500 $
- Année de l'évaluation
- 2023
- Garantie légale
- Vente avec garantie légale
Dépenses
- Taxes municipales - Dépense générale
- Année:2026
- Montant:4 347 $
- Fréquence:Annuel
- Taxes scolaires - Dépense générale
- Année:2025
- Montant:542 $
- Fréquence:Annuel
Addenda
DOMAINE UNIQUE AVEC ÉRABLIÈRE -- UN HAVRE DE PAIX AUX MULTIPLES POSSIBILITÉS
Découvrez ce domaine exceptionnel niché sur un terrain de plus de 662 000 pi² (plus de 15 acres), où tranquillité, intimité et nature s'unissent pour offrir un cadre de vie absolument incomparable. Située à moins de 5 minutes de l'autoroute 10, cette propriété rare marie parfaitement le charme de la campagne et la proximité des services.
Au coeur du domaine se trouve une magnifique érablière de 1 500 entailles, peuplée d'érables matures, dont plusieurs sont centenaires. L'exploitation acéricole est facilitée par une cabane à sucre entièrement rénovée en 2022, équipée d'une bouilloire et d'un système neuf, prête pour une production clé en main.
La résidence principale dégage une atmosphère chaleureuse et accueillante. Elle comprend 3 chambres à coucher, dont 2 suites privées avec salle de bain attenante, idéales pour recevoir famille et amis dans le plus grand confort. Les 2 foyers au bois créent une ambiance conviviale et réconfortante en toute saison.
Un vaste garage détaché, muni d'un plancher chauffant, vient compléter cette propriété. Adjacente à celui-ci, une aire de repos aménagée avec cuisinette, salon et salle de bain offre un espace polyvalent idéal pour accueillir des invités, loger un employé saisonnier ou simplement profiter d'un coin détente après une journée en nature.
L'extérieur vous séduira par son cadre paisible et sa grande intimité, à l'abri des regards, où la forêt majestueuse et les espaces dégagés se côtoient harmonieusement. Ce domaine est un véritable sanctuaire pour les amoureux de la nature, les passionnés d'acériculture ou toute personne en quête d'un style de vie serein, sans compromis sur l'accessibilité.
Confort, charme, potentiel et intimité inégalée -- cette propriété est bien plus qu'une maison, c'est une opportunité unique de vivre au rythme de la nature tout en demeurant à proximité de tout.
Découvrez ce domaine exceptionnel niché sur un terrain de plus de 662 000 pi² (plus de 15 acres), où tranquillité, intimité et nature s'unissent pour offrir un cadre de vie absolument incomparable. Située à moins de 5 minutes de l'autoroute 10, cette propriété rare marie parfaitement le charme de la campagne et la proximité des services.
Au coeur du domaine se trouve une magnifique érablière de 1 500 entailles, peuplée d'érables matures, dont plusieurs sont centenaires. L'exploitation acéricole est facilitée par une cabane à sucre entièrement rénovée en 2022, équipée d'une bouilloire et d'un système neuf, prête pour une production clé en main.
La résidence principale dégage une atmosphère chaleureuse et accueillante. Elle comprend 3 chambres à coucher, dont 2 suites privées avec salle de bain attenante, idéales pour recevoir famille et amis dans le plus grand confort. Les 2 foyers au bois créent une ambiance conviviale et réconfortante en toute saison.
Un vaste garage détaché, muni d'un plancher chauffant, vient compléter cette propriété. Adjacente à celui-ci, une aire de repos aménagée avec cuisinette, salon et salle de bain offre un espace polyvalent idéal pour accueillir des invités, loger un employé saisonnier ou simplement profiter d'un coin détente après une journée en nature.
L'extérieur vous séduira par son cadre paisible et sa grande intimité, à l'abri des regards, où la forêt majestueuse et les espaces dégagés se côtoient harmonieusement. Ce domaine est un véritable sanctuaire pour les amoureux de la nature, les passionnés d'acériculture ou toute personne en quête d'un style de vie serein, sans compromis sur l'accessibilité.
Confort, charme, potentiel et intimité inégalée -- cette propriété est bien plus qu'une maison, c'est une opportunité unique de vivre au rythme de la nature tout en demeurant à proximité de tout.
Courtiers immobiliers
Cédrick Benoit
Courtier immobilier résidentiel et commercial (F0090)
Cédrick Benoit Inc.
Agence immobilière :
ENGEL & VÖLKERS MONTRÉAL (G7014)
Boutique immobilière ⬩ SIEGE SOCIAL
Vincent Fortin
Courtier immobilier résidentiel (G9522)
Vincent Fortin Courtier Immobilier Inc.
Agence immobilière :
ENGEL & VÖLKERS MONTRÉAL (G7014)
Boutique immobilière ⬩ SIEGE SOCIAL