Maison à vendre - Beaupré749 500 $ +taxes
749 500 $ +taxes
Courtiers inscripteurs : Marie-Hélène Poulin - Engel & Völkers ● François Leroux - Engel & Völkers ● # 17130540
4
2
2
16
10 217 pc
À construire
Description
Le modèle ULOKE, réalisé par TALO Plans, propose une architecture contemporaine inspirée du style nordique, où volumes épurés et matériaux naturels s'harmonisent avec l'environnement. L'aire de vie principale, aménagée à l'étage, maximise les vues sur le Mont Sainte-Anne et s'ouvre sur un vaste balcon de coin à l'avant. À l'arrière, un second balcon couvert offre une immersion intime en forêt. Lumineux et ouvert, ce concept allie design, confort et connexion à la nature pour une expérience de vie apaisante et inspirante.FYRA Quartier, Beaupré, Terrain 61, valeur de 169 452$ + tx.
Détails
- Allée
- Non Pavée
- Armoires
- Mélamine
- Mode de chauffage
- Plinthes électriques
- Approvisionnement en eau
- Municipalité
- Énergie pour le chauffage
- Électricité
- Fenêtres
- PVC
- Fondation
- Béton coulé
- Particularités
- Aucun voisin à l'arrière
- Boisé
- Proximité
- Autoroute/Voie rapide
- Garderie/CPE
- Golf
- Parc-espace vert
- École primaire
- Ski alpin
- École secondaire
- Ski de fond
- Sentier de motoneige
- Sentier de VTT
- Salle de bains/salle d'eau
- Attenante à la chambre principale
- Douche indépendante
- Sous-sol
- Non aménagé
- Stationnement (total)
- Extérieur (2)
- Système d'égouts
- Municipal
- Type de fenêtre
- Manivelle
- Toiture
- Bardeaux d'asphalte
- Topographie
- Plat
- Vue
- Sur la montagne
- Zonage
- Résidentiel
- Superficie du terrain
- 10 217 pc
- Code historique
- ACONS
- Superficie du bâtiment
- 1 925 pc
- Nombre de pièces
- 16
- Nombre de chambres
- 4
- Nombre de chambres hors-sol
- 3
- Nombre de chambres au sous-sol
- 1
- Nombre de salles de bains
- 2
- Nombre de salles d'eau
- 0
- Particularité de la construction
- Neuve
- Type de bâtiment
- Détaché (Isolé)
- Unité :
- 1
- Nombre de pièces
- 16
- Nombre de chambres
- 4
Type de pièce
Étage
Dimensions
Plancher
Autres détails
- Type de pièce :
- Hall d'entrée/Vestibule
- Étage :
- 1er niveau/RDC
- Dimensions :
- 6.0x7.0 p
- Plancher :
- Céramique
- Autres détails :
- Type de pièce :
- Penderie (Walk-in)
- Étage :
- 1er niveau/RDC
- Dimensions :
- 7.0x9.10 p
- Plancher :
- Céramique
- Autres détails :
- Type de pièce :
- Salle d'eau
- Étage :
- 1er niveau/RDC
- Dimensions :
- 5.1x7.2 p
- Plancher :
- Céramique
- Autres détails :
- Type de pièce :
- Salle de bains
- Étage :
- 1er niveau/RDC
- Dimensions :
- 11.5x7.2 p
- Plancher :
- Céramique
- Autres détails :
- Type de pièce :
- Chambre à coucher principale
- Étage :
- 1er niveau/RDC
- Dimensions :
- 11.9x11.0 p
- Plancher :
- Bois
- Autres détails :
- Garde manger
- Type de pièce :
- Penderie (Walk-in)
- Étage :
- 1er niveau/RDC
- Dimensions :
- 5.0x7.2 p
- Plancher :
- Bois
- Autres détails :
- Type de pièce :
- Chambre à coucher
- Étage :
- 1er niveau/RDC
- Dimensions :
- 11.9x10.10 p
- Plancher :
- Bois
- Autres détails :
- Type de pièce :
- Chambre à coucher
- Étage :
- 1er niveau/RDC
- Dimensions :
- 15.1x9.8 p
- Plancher :
- Bois
- Autres détails :
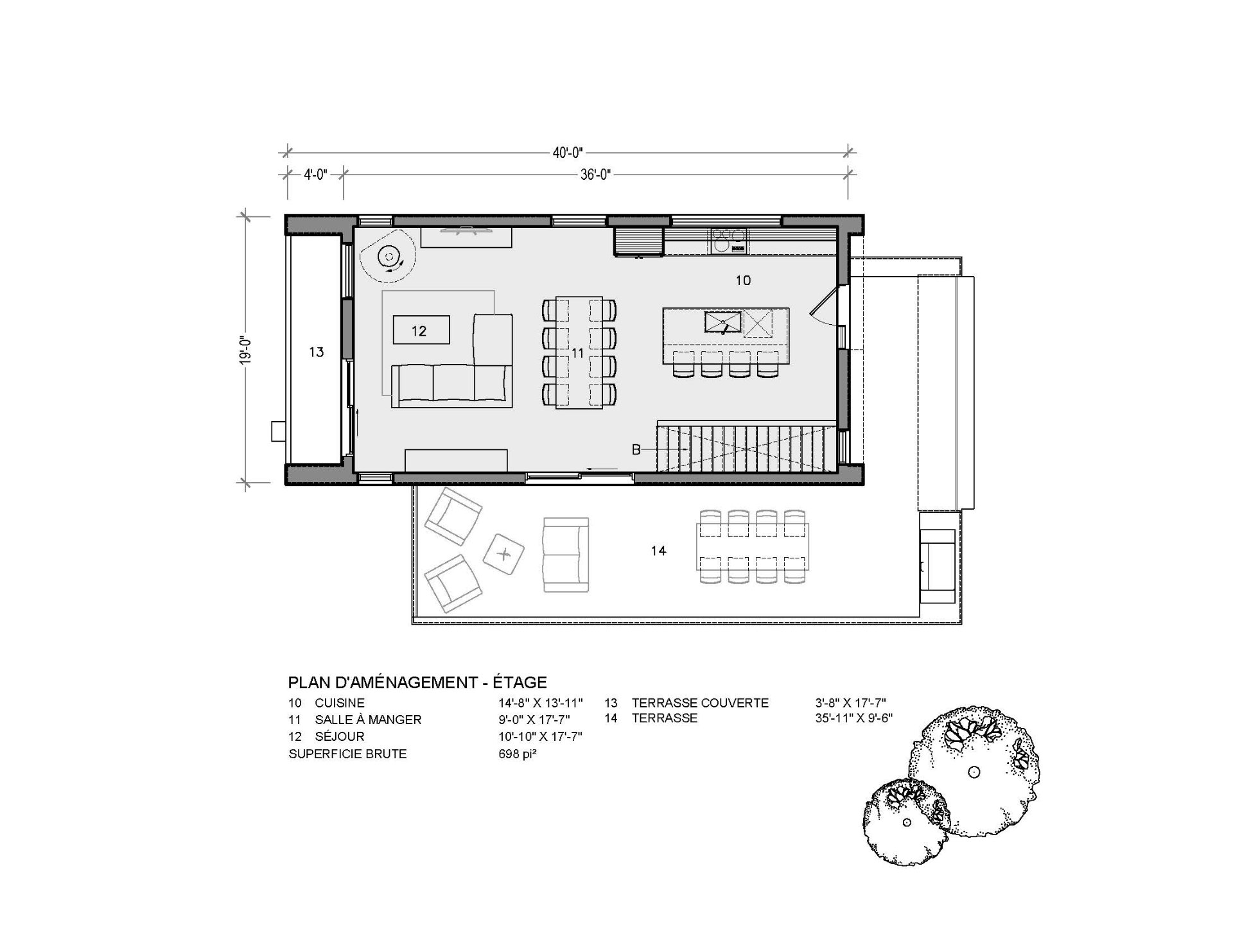
- Type de pièce :
- Cuisine
- Étage :
- 2ième étage
- Dimensions :
- 14.8x13.11 p
- Plancher :
- Bois
- Autres détails :
- Type de pièce :
- Salle à manger
- Étage :
- 2ième étage
- Dimensions :
- 9.0x17.7 p
- Plancher :
- Bois
- Autres détails :
- Type de pièce :
- Salon
- Étage :
- 2ième étage
- Dimensions :
- 10.10x17.7 p
- Plancher :
- Bois
- Autres détails :
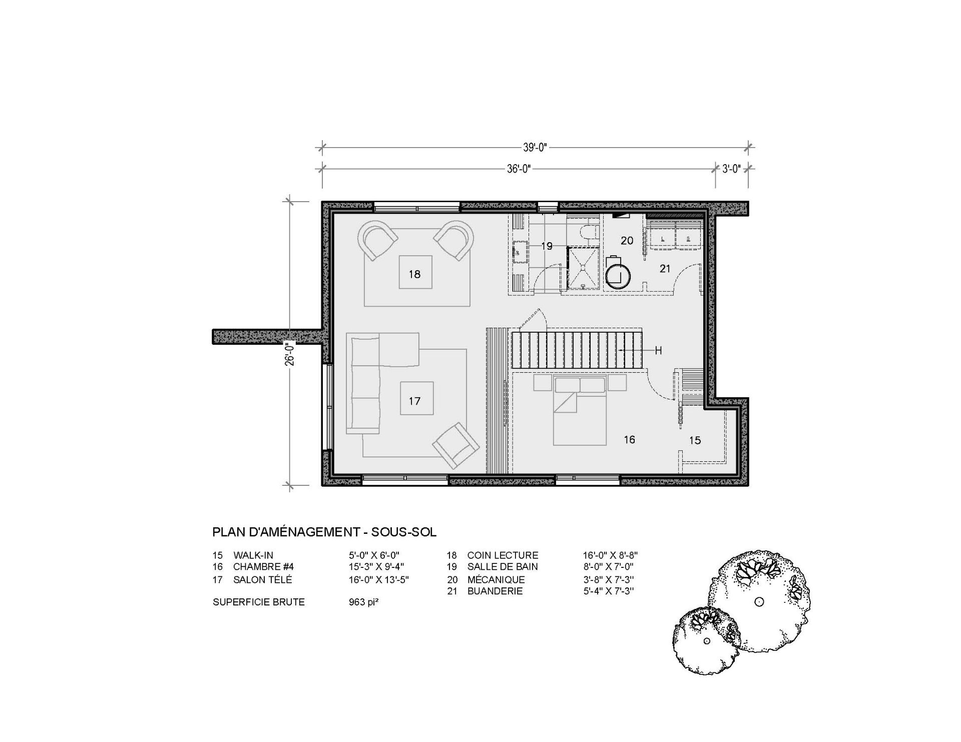
- Type de pièce :
- Chambre à coucher
- Étage :
- Sous-sol
- Dimensions :
- 15.3x9.4 p
- Plancher :
- Béton
- Autres détails :
- Non fini
- Type de pièce :
- Penderie (Walk-in)
- Étage :
- Sous-sol
- Dimensions :
- 5.0x6.0 p
- Plancher :
- Béton
- Autres détails :
- Non fini
- Type de pièce :
- Salle de bains
- Étage :
- Sous-sol
- Dimensions :
- 8.0x7.0 p
- Plancher :
- Béton
- Autres détails :
- Non fini
- Type de pièce :
- Salle de lavage
- Étage :
- Sous-sol
- Dimensions :
- 5.4x7.3 p
- Plancher :
- Béton
- Autres détails :
- Non fini
- Type de pièce :
- Salle familiale
- Étage :
- Sous-sol
- Dimensions :
- 24.8x13.5 p
- Plancher :
- Béton
- Autres détails :
- Non fini
Évaluations
- Garantie légale
- Vente avec garantie légale
Dépenses
- Coût d'énergie - Dépense générale
- Montant:1 $
- Fréquence:Annuel
- Taxes municipales - Dépense générale
- Fréquence:Annuel
- Taxes scolaires - Dépense générale
- Fréquence:Annuel
Addenda
Les plans présentés sont une création originale et demeurent la propriété intellectuelle exclusive du concepteur architectural TALO. Toute reproduction, diffusion ou utilisation à des fins autres que celles prévues dans le cadre du projet est strictement interdite sans l'autorisation écrite de TALO. Le prix indiqué est un prix estimé, à partir de 580 000$+tx, sous réserve de modifications selon les choix de finition et les conditions du projet.
Courtiers immobiliers
Marie-Hélène Poulin
Courtier immobilier résidentiel et commercial (D4214)
Agence immobilière :
ENGEL & VÖLKERS QUÉBEC (G8468)
Boutique immobilière ⬩ RÉGION DE QUÉBEC
François Leroux
Courtier immobilier résidentiel et commercial (G2493)
François Leroux Courtier Inc.
Agence immobilière :
ENGEL & VÖLKERS QUÉBEC (G8468)
Boutique immobilière ⬩ RÉGION DE QUÉBEC