Duplex à vendre - Centre-ville525 000 $
525 000 $
Courtier inscripteur : Edouard Gamache - Engel & Völkers ● # 20178603
1
1
3
Inconnue
Description
Belle opportunité dans le secteur! Charmante bâtisse dans une rue tranquille, près de tous les services.
Détails
- Mode de chauffage
- Plinthes électriques
- Approvisionnement en eau
- Municipalité
- Énergie pour le chauffage
- Électricité
- Fondation
- Pierre
- Proximité
- Garderie/CPE
- Parc-espace vert
- Piste cyclable
- École primaire
- École secondaire
- Transport en commun
- Système d'égouts
- Municipal
- Toiture
- Membrane élastomère
- Topographie
- Plat
- Zonage
- Résidentiel
- Près de
- rue Champagne
- Code historique
- INCO
- Façade du bâtiment
- 9.85 m
- Profondeur du bâtiment
- 5.89 m
- Nombre d'étages
- 2
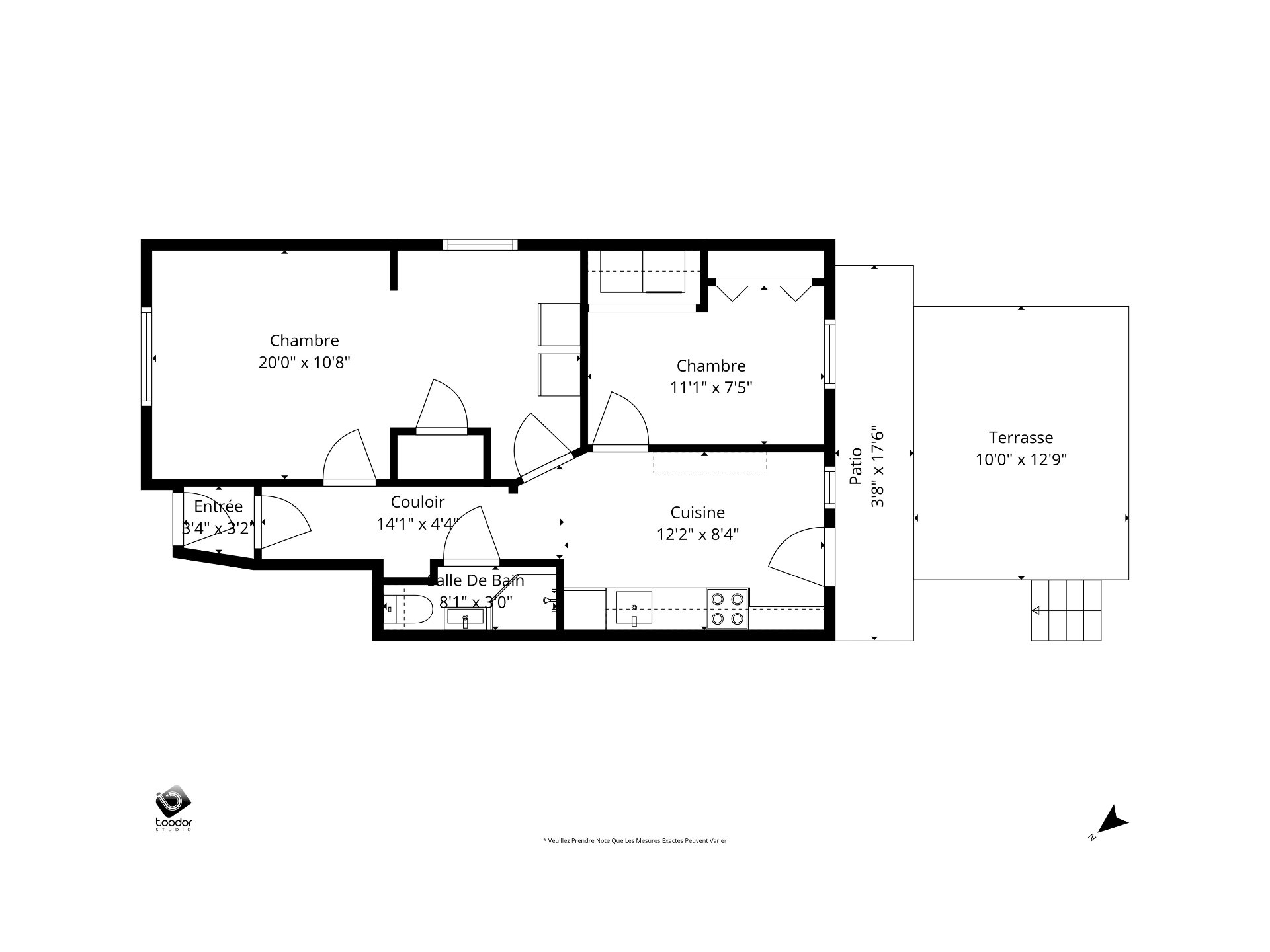
- Nombre de pièces
- 3
- Nombre de chambres
- 1
- Nombre de salles de bains
- 1
- Nombre de salles d'eau
- 0
- Nombre d'unités total
- 2
- Particularité de la construction
- En conversion
- Type de bâtiment
- Jumelé
- Unité :
- 1
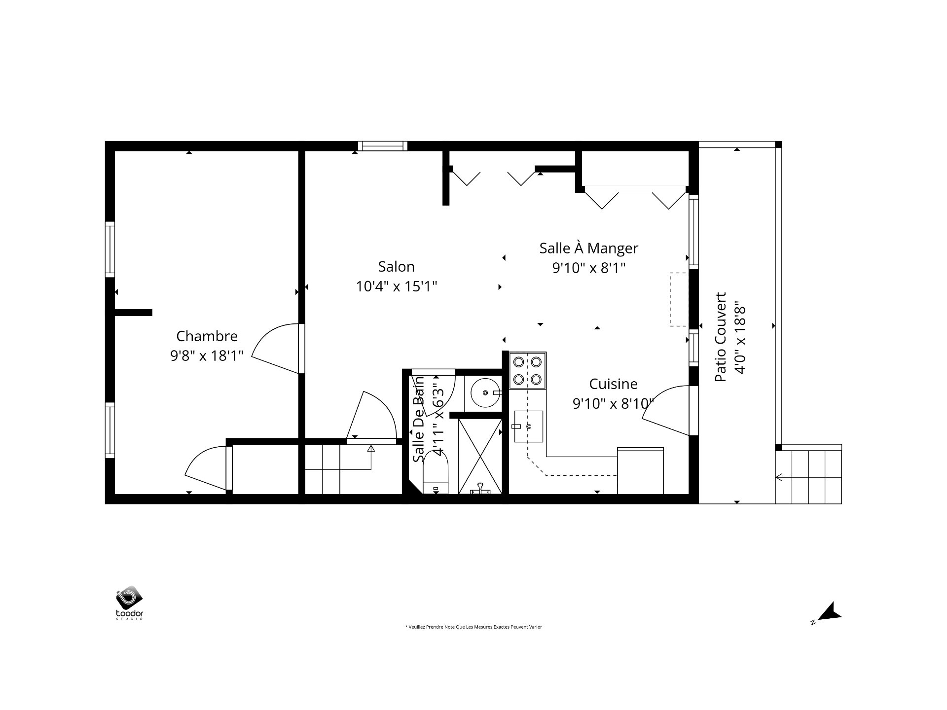
- Nombre de pièces
- 3
- Nombre de chambres
- 1
- Unité :
- 2
- Nombre de pièces
- 3
- Nombre de chambres
- 1
- Nombre d'unités total
- 2
- Nombre de salles de bains
- 1
- Nombre de chambres
- 1
Évaluations
- Date de référence (revenu potentiel)
- 2026/03/23
- Garantie légale
- Vente avec exclusion(s) de garantie légale - Voir courtier(s) inscripteur(s)
- Revenu potentiel brut (résidentiel)
- 25 272 $
Dépenses
- Taxes municipales - Dépense générale
- Fréquence:Annuel
- Taxes scolaires - Dépense générale
- Fréquence:Annuel
Addenda
L'immeuble est actuellement inscrit comme un 8plex à la ville.
Toutefois, les propriétaires sont en démarche afin de convertir cet immeuble en 4 Duplex qui feront partie d'une copropriété horizontale.
Le numéro de cadastre actuel pour ce 8 logements est 1 424 366 sous l'adresse 1424-1440 Poupart.
La déclaration de copropriété a été rédigée et nous sommes dans l'attente des nouveaux certificats de localisation.
Attention:
-La dimension du terrain est actuellement approximative puisque nous attendons le nouveau certificat de localisation.
- Les montants des taxes scolaire et municipale sont inconnus pour l'instant. Nous attendons les nouveaux rôles.
- Le montant des assurances est actuellement basé sur un simple 8 logements. Il y aura maintenant une assurance pour chaque Duplex ainsi qu'une assurance pour l'ensemble des 4 Duplex en copropriété.
- Un compte en fidéicommis sera mit en place pour la copropriété. Les frais de condo sont estimés à 100$ par mois. Ceux-ci serviront au fond de prévoyance pour tout travaux éventuel. Aussi, il faut prévoir payer le 1/4 des assurances de la copropriété soit 1,878$ pour un Duplex.
- Le propriétaire n'a pas les baux originaux.
La présente vente est faite sans garantie légale de qualité, aux risques et périls de l'acheteur.
Toutefois, les propriétaires sont en démarche afin de convertir cet immeuble en 4 Duplex qui feront partie d'une copropriété horizontale.
Le numéro de cadastre actuel pour ce 8 logements est 1 424 366 sous l'adresse 1424-1440 Poupart.
La déclaration de copropriété a été rédigée et nous sommes dans l'attente des nouveaux certificats de localisation.
Attention:
-La dimension du terrain est actuellement approximative puisque nous attendons le nouveau certificat de localisation.
- Les montants des taxes scolaire et municipale sont inconnus pour l'instant. Nous attendons les nouveaux rôles.
- Le montant des assurances est actuellement basé sur un simple 8 logements. Il y aura maintenant une assurance pour chaque Duplex ainsi qu'une assurance pour l'ensemble des 4 Duplex en copropriété.
- Un compte en fidéicommis sera mit en place pour la copropriété. Les frais de condo sont estimés à 100$ par mois. Ceux-ci serviront au fond de prévoyance pour tout travaux éventuel. Aussi, il faut prévoir payer le 1/4 des assurances de la copropriété soit 1,878$ pour un Duplex.
- Le propriétaire n'a pas les baux originaux.
La présente vente est faite sans garantie légale de qualité, aux risques et périls de l'acheteur.
Courtier immobilier
Edouard Gamache
Courtier immobilier résidentiel (G1820)
Edouard Gamache Inc.
Agence immobilière :
ENGEL & VÖLKERS MONTRÉAL (G7014)
Boutique immobilière ⬩ SIEGE SOCIAL