Maison à vendre - Shannon767 554 $ +taxes Prix demandé
767 554 $ +taxes
Prix demandéCourtier inscripteur : François Leroux - Engel & Völkers ● # 22298790
3
1+1
1
6
12
1 854 pc
2 001,8 mc
En construction
Description
À Shannon, superbe cottage offrant plus de 1054 pi² au rez-de-chaussée seulement, avec un espace bureau pratique et un salon spectaculaire doté de plafonds de près de 14 pi. Trois chambres à l'étage, avec possibilité d'en ajouter deux au sous-sol (à aménager). Comptoirs de pierre, foyer, air climatisé, garage : tout y est! La fenestration généreuse met en valeur la nature environnante. Le tout sur un magnifique terrain boisé de 2001 m².
Détails
- Mode de chauffage
- Plinthes électriques
- Approvisionnement en eau
- Municipalité
- Énergie pour le chauffage
- Électricité
- Fenêtres
- PVC
- Fondation
- Béton coulé
- Foyers-poêles
- Foyer au gaz
- Garage
- Attaché
- Chauffé
- Simple largeur
- Proximité
- Autoroute/Voie rapide
- Garderie/CPE
- Golf
- École primaire
- Revêtements
- Fibre pressée
- Pierre
- Salle de bains/salle d'eau
- Douche indépendante
- Sous-sol
- 6 pieds et plus
- Non aménagé
- Stationnement (total)
- Extérieur (6)
- Au garage (1)
- Système d'égouts
- Champ d'épuration
- Fosse septique
- Particularités
- Boisé
- Type de fenêtre
- Manivelle
- Toiture
- Bardeaux d'asphalte
- Zonage
- Résidentiel
- Superficie du terrain
- 2 001,8 mc
- Façade du terrain
- 33.02 m
- Profondeur du terrain
- 62.50 m
- Code historique
- CONS
- Superficie du bâtiment
- 1 054 pc
- Superficie habitable
- 1 854 pc
- Façade du bâtiment
- 39 p
- Profondeur du bâtiment
- 32 p
- Nombre de pièces
- 12
- Nombre de chambres
- 3
- Nombre de chambres hors-sol
- 3
- Nombre de chambres au sous-sol
- 0
- Nombre de salles de bains
- 1
- Nombre de salles d'eau
- 1
- Particularité de la construction
- Neuve
- Type de bâtiment
- Détaché (Isolé)
- Unité :
- 1
- Nombre de pièces
- 12
- Nombre de chambres
- 3
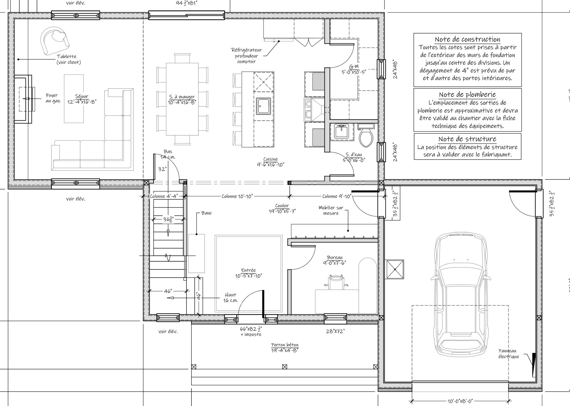
Type de pièce
Étage
Dimensions
Plancher
Foyer
Autres détails
- Type de pièce :
- Salon
- Étage :
- 1er niveau/RDC
- Dimensions :
- 12.4x16.8 p
- Plancher :
- Bois
- Foyer :
- Autres détails :
- Type de pièce :
- Salle à manger
- Étage :
- 1er niveau/RDC
- Dimensions :
- 10.4x16.8 p
- Plancher :
- Bois
- Foyer :
- Autres détails :
- Type de pièce :
- Cuisine
- Étage :
- 1er niveau/RDC
- Dimensions :
- 9.6x16.10 p
- Plancher :
- Céramique
- Foyer :
- Autres détails :
- Type de pièce :
- Salle d'eau
- Étage :
- 1er niveau/RDC
- Dimensions :
- 5x6 p
- Plancher :
- Céramique
- Foyer :
- Autres détails :
- Type de pièce :
- Bureau à domicile
- Étage :
- 1er niveau/RDC
- Dimensions :
- 9x7.6 p
- Plancher :
- Bois
- Foyer :
- Autres détails :
- Type de pièce :
- Penderie (Walk-in)
- Étage :
- 1er niveau/RDC
- Dimensions :
- 5x10.5 p
- Plancher :
- Céramique
- Foyer :
- Autres détails :
- garde-manger walk-in
- Type de pièce :
- Hall d'entrée/Vestibule
- Étage :
- 1er niveau/RDC
- Dimensions :
- 10.5x7.10 p
- Plancher :
- Céramique
- Foyer :
- Autres détails :
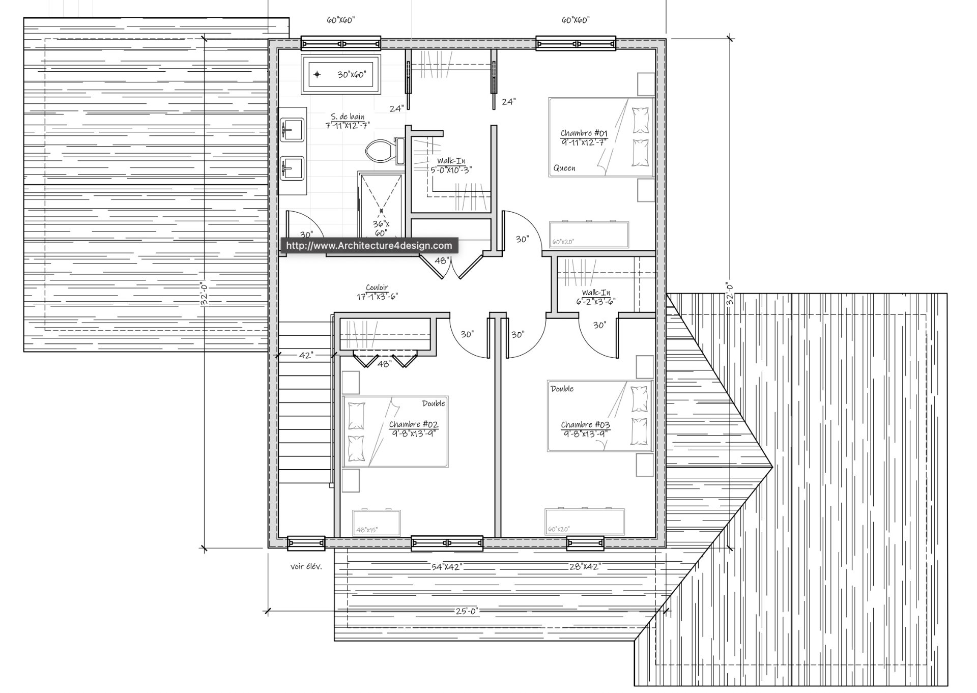
- Type de pièce :
- Salle de bains
- Étage :
- 2ième étage
- Dimensions :
- 7.11x12.7 p
- Plancher :
- Céramique
- Foyer :
- Autres détails :
- Type de pièce :
- Chambre à coucher principale
- Étage :
- 2ième étage
- Dimensions :
- 9.11x12.7 p
- Plancher :
- Bois
- Foyer :
- Autres détails :
- walk-in
- Type de pièce :
- Chambre à coucher
- Étage :
- 2ième étage
- Dimensions :
- 9.8x13.9 p
- Plancher :
- Bois
- Foyer :
- Autres détails :
- Type de pièce :
- Chambre à coucher
- Étage :
- 2ième étage
- Dimensions :
- 9.8x13.9 p
- Plancher :
- Bois
- Foyer :
- Autres détails :
- Type de pièce :
- Penderie (Walk-in)
- Étage :
- 2ième étage
- Dimensions :
- 5x10.3 p
- Plancher :
- Bois
- Foyer :
- Autres détails :
Évaluations
- Garantie légale
- Vente avec garantie légale
Dépenses
- Taxes municipales - Dépense générale
- Fréquence:Annuel
- Taxes scolaires - Dépense générale
- Fréquence:Annuel
Courtier immobilier
François Leroux
Courtier immobilier résidentiel et commercial (G2493)
François Leroux Courtier Inc.
Agence immobilière :
ENGEL & VÖLKERS QUÉBEC (G8468)
Boutique immobilière ⬩ RÉGION DE QUÉBEC