Duplex à vendre - Québec (La Cité-Limoilou)1 395 000 $
1 395 000 $
Courtier inscripteur : Samuel Labrecque - Engel & Völkers ● # 23802079
3
2+1
2
3
11
2 323,9 pc
4 063,37 pc
1920
Description
- MONTCALM - Superbe duplex impeccablement entretenu au coeur du quartier prisé de Montcalm, à deux pas de l'Avenue Cartier. La propriété a bénéficié de nombreux travaux récents : drain de fondation, portes et fenêtres, etc. Vous profiterez d'une cour intime avec piscine, parfaite pour se détendre en toute tranquillité. Garage double - une rareté dans le secteur. Le logement du 2e étage, loué à de bons locataires, génère un revenu intéressant. Entretien rigoureux, cachet préservé et emplacement exceptionnel. Une occasion unique dans un des quartiers les plus recherchés de Québec, offrant un mode de vie urbain, élégant et sans compromis.
Détails
- Allée
- Non Pavée
- Mode de chauffage
- Eau chaude
- Plinthes électriques
- Approvisionnement en eau
- Municipalité
- Énergie pour le chauffage
- Électricité
- Équipement disponible
- Borne de recharge - niveau 2
- Thermopompe murale
- Services disponibles
- Détecteur d'incendie
- Fenêtres
- Aluminium
- Autre (Lepage)
- Bois
- Fondation
- Béton coulé
- Foyers-poêles
- Foyer au bois
- Poêle à bois
- Garage
- Chauffé
- Détaché
- Double largeur ou plus
- Piscine
- Autre (Au sel)
- Chauffée
- Creusée
- Proximité
- Autre (Avenue Cartier)
- Autoroute/Voie rapide
- Cegep
- Garderie/CPE
- Hôpital
- Parc-espace vert
- Piste cyclable
- École primaire
- École secondaire
- Transport en commun
- Université
- Revêtements
- Acier
- Autre (Dryvit)
- Brique
- Sous-sol
- 6 pieds et plus
- Bas (moins de 6 pieds)
- Entrée indépendante
- Partiellement aménagé
- Stationnement (total)
- Extérieur (3)
- Au garage (2)
- Système d'égouts
- Municipal
- Aménagement du terrain
- Clôturé
- Paysager
- Type de fenêtre
- Guillotine
- Manivelle
- Porte-fenêtre
- Toiture
- Bardeaux d'asphalte
- Membrane élastomère
- Topographie
- Plat
- Zonage
- Résidentiel
- Superficie du terrain
- 4 063,37 pc
- Façade du terrain
- 35 p
- Profondeur du terrain
- 118 p
- Année de construction
- 1920
- Superficie habitable
- 2 323,9 pc
- Façade du bâtiment
- 7.96 m
- Profondeur du bâtiment
- 14.04 m
- Nombre d'étages
- 2
- Nombre de pièces
- 11
- Nombre de chambres
- 3
- Nombre de salles de bains
- 2
- Nombre de salles d'eau
- 1
- Nombre d'unités total
- 2
- Type de bâtiment
- Détaché (Isolé)
- Unité :
- 1
- Nombre de stationnements intérieurs
- 2
- Nombre de stationnements extérieurs
- 2
- Nombre de pièces
- 11
- Nombre de chambres
- 3
- Unité :
- 2
- Nombre de stationnements intérieurs
- 0
- Nombre de stationnements extérieurs
- 1
- Nombre de pièces
- 9
- Nombre de chambres
- 2
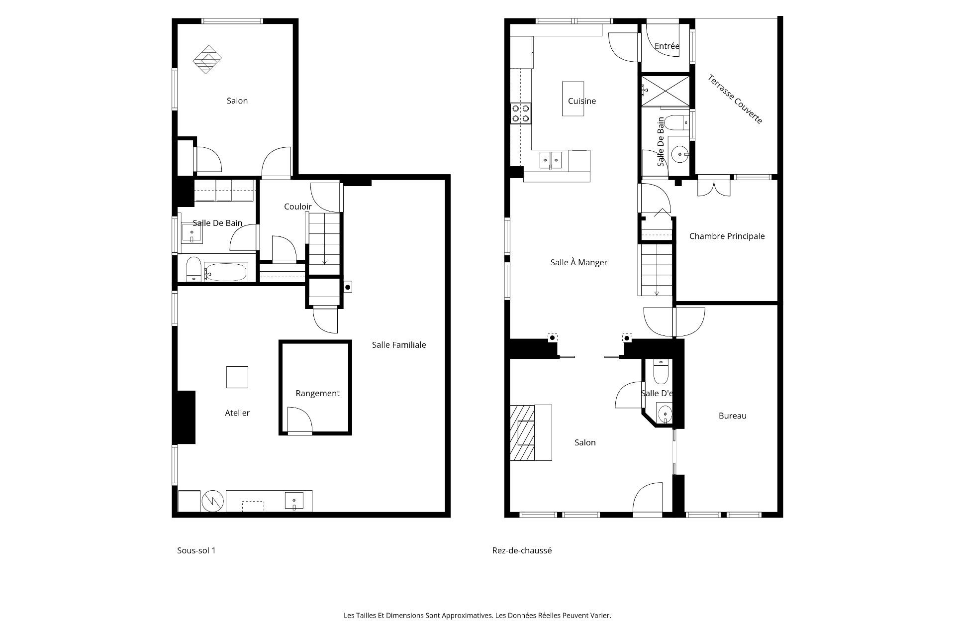
Type de pièce
Étage
Dimensions
Plancher
Foyer
- Type de pièce :
- Salon
- Étage :
- 1er niveau/RDC
- Dimensions :
- 15.2x13.8 p
- Plancher :
- Bois
- Foyer :
- Type de pièce :
- Salle d'eau
- Étage :
- 1er niveau/RDC
- Dimensions :
- 2.8x5.9 p
- Plancher :
- Céramique
- Foyer :
- Type de pièce :
- Chambre à coucher
- Étage :
- 1er niveau/RDC
- Dimensions :
- 8.4x18.11 p
- Plancher :
- Bois
- Foyer :
- Type de pièce :
- Salle à manger
- Étage :
- 1er niveau/RDC
- Dimensions :
- 14.6x14.11 p
- Plancher :
- Bois
- Foyer :
- Type de pièce :
- Cuisine
- Étage :
- 1er niveau/RDC
- Dimensions :
- 10.11x15.0 p
- Plancher :
- Bois
- Foyer :
- Type de pièce :
- Salle de bains
- Étage :
- 1er niveau/RDC
- Dimensions :
- 9.1x4.9 p
- Plancher :
- Céramique
- Foyer :
- Type de pièce :
- Chambre à coucher
- Étage :
- 1er niveau/RDC
- Dimensions :
- 10.10x8.8 p
- Plancher :
- Bois
- Foyer :
- Type de pièce :
- Salle de bains
- Étage :
- Sous-sol
- Dimensions :
- 9.9x5.10 p
- Plancher :
- Béton
- Foyer :
- Type de pièce :
- Chambre à coucher
- Étage :
- Sous-sol
- Dimensions :
- 13.11x10.8 p
- Plancher :
- Béton
- Foyer :
- Type de pièce :
- Salle familiale
- Étage :
- Sous-sol
- Dimensions :
- 9.2x29.10 p
- Plancher :
- Béton
- Foyer :
- Type de pièce :
- Atelier
- Étage :
- Sous-sol
- Dimensions :
- 19.11x11.10 p
- Plancher :
- Béton
- Foyer :
- Type de pièce :
- Chambre à coucher
- Étage :
- 2ième étage
- Dimensions :
- 9.3x10.0 p
- Plancher :
- Bois
- Foyer :
- Type de pièce :
- Salle de bains
- Étage :
- 2ième étage
- Dimensions :
- 7.4x5.5 p
- Plancher :
- Céramique
- Foyer :
- Type de pièce :
- Salon
- Étage :
- 2ième étage
- Dimensions :
- 12.1x15.9 p
- Plancher :
- Bois
- Foyer :
- Type de pièce :
- Salle à manger
- Étage :
- 2ième étage
- Dimensions :
- 13.11x9.8 p
- Plancher :
- Bois
- Foyer :
- Type de pièce :
- Chambre à coucher
- Étage :
- 2ième étage
- Dimensions :
- 11.3x10.11 p
- Plancher :
- Bois
- Foyer :
- Type de pièce :
- Cuisine
- Étage :
- 2ième étage
- Dimensions :
- 15.0x13.6 p
- Plancher :
- Bois
- Foyer :
- Type de pièce :
- Hall d'entrée/Vestibule
- Étage :
- 2ième étage
- Dimensions :
- 3.4x4.11 p
- Plancher :
- Céramique
- Foyer :
- Type de pièce :
- Étage Mansardé
- Étage :
- 3ième étage
- Dimensions :
- 15.2x9.4 p
- Plancher :
- Bois
- Foyer :
- Type de pièce :
- Rangement
- Étage :
- 3ième étage
- Dimensions :
- 9.2x9.4 p
- Plancher :
- Contre-plaqué
- Foyer :
- Inclusions
- Pour le 125 : Les habillages des fenêtres, les luminaires, les électroménagers de la cuisine (réfrigérateur, cuisinière, lave-vaisselle et cellier), la laveuse et la sécheuse, les accessoires de la piscine, la borne de recharge électrique dans le garage. Pour le 127 : Les luminaires, les électroménagers de la cuisine (réfrigérateur, cuisinière et lave-vaisselle), la laveuse et la sécheuse.
- Exclusions
- Tous les biens et les meubles du vendeur, le fan au plafond du salon et les biens et les meubles du locataire du 127.
Évaluations
- Évaluation du bâtiment
- 637 000 $
- Évaluation du terrain
- 368 000 $
- Année de l'évaluation
- 2026
- Date de référence (revenu potentiel)
- 2025/11/12
- Garantie légale
- Vente avec exclusion(s) de garantie légale - Voir courtier(s) inscripteur(s)
- Revenu potentiel brut (résidentiel)
- 58 200 $
Dépenses
- Taxes municipales - Dépense générale
- Année:2026
- Montant:10 481 $
- Fréquence:Annuel
- Taxes scolaires - Dépense générale
- Année:2025
- Montant:669 $
- Fréquence:Annuel
Addenda
Promesse d'achat acceptée pour les visites du logement 127. Avis de 24 heures requis pour les visites et acheteurs préqualifiés seulement. Partie commerciale de 6 % sur l'immeuble; si l'acheteur souhaite une vocation 100 % résidentielle, une demande pourra être adressée à la Ville afin d'ajuster les taxes municipales et scolaires en conséquence.
Situé au coeur du quartier Montcalm, ce superbe duplex bénéficie d'un emplacement exceptionnel, à quelques pas de l'Avenue Cartier et de ses nombreuses boutiques, cafés, restaurants et galeries d'art. Vous profiterez également de la proximité immédiate des plaines d'Abraham, du Grand Théâtre et du centre-ville, tout en bénéficiant d'un environnement résidentiel paisible et recherché.
L'immeuble a fait l'objet d'un entretien méticuleux et de nombreuses améliorations au fil des ans : drain de fondation, remplacement des portes et fenêtres, construction du garage et entretien général soigné. La cour arrière, intime et joliment aménagée, abrite une piscine pour des moments de détente en toute tranquillité. Le garage double, rarissime dans ce secteur, offre un atout majeur pour les occupants.
Le logement du rez-de-chaussée se distingue par son cachet, ses matériaux de qualité et sa luminosité. Le logement du 2e étage, présentement loué à des locataires de qualité, procure un revenu appréciable et stable.
Un immeuble qui allie élégance, confort et rentabilité, dans l'un des secteurs les plus convoités de Québec -- une opportunité à ne pas manquer.
Demandez votre visite !
Situé au coeur du quartier Montcalm, ce superbe duplex bénéficie d'un emplacement exceptionnel, à quelques pas de l'Avenue Cartier et de ses nombreuses boutiques, cafés, restaurants et galeries d'art. Vous profiterez également de la proximité immédiate des plaines d'Abraham, du Grand Théâtre et du centre-ville, tout en bénéficiant d'un environnement résidentiel paisible et recherché.
L'immeuble a fait l'objet d'un entretien méticuleux et de nombreuses améliorations au fil des ans : drain de fondation, remplacement des portes et fenêtres, construction du garage et entretien général soigné. La cour arrière, intime et joliment aménagée, abrite une piscine pour des moments de détente en toute tranquillité. Le garage double, rarissime dans ce secteur, offre un atout majeur pour les occupants.
Le logement du rez-de-chaussée se distingue par son cachet, ses matériaux de qualité et sa luminosité. Le logement du 2e étage, présentement loué à des locataires de qualité, procure un revenu appréciable et stable.
Un immeuble qui allie élégance, confort et rentabilité, dans l'un des secteurs les plus convoités de Québec -- une opportunité à ne pas manquer.
Demandez votre visite !
Courtier immobilier
Samuel Labrecque
Courtier immobilier résidentiel (H2238)
Samuel Labrecque Courtier Immobilier Inc.
Agence immobilière :
ENGEL & VÖLKERS QUÉBEC (G8468)
Boutique immobilière ⬩ RÉGION DE QUÉBEC