Condo à vendre - Sud-Ouest613 000 $
613 000 $
Courtiers inscripteurs : Martin Rouleau - Engel & Völkers ● Raghd Issa - Engel & Völkers ● # 24466973
2
1
4
717 pc
2021
Description
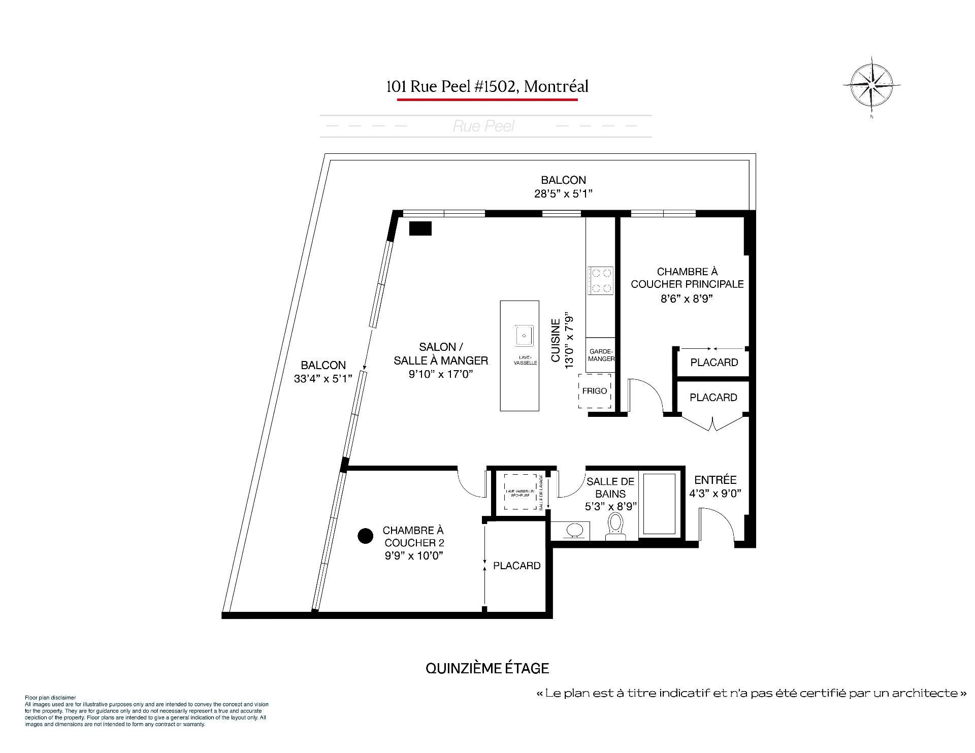
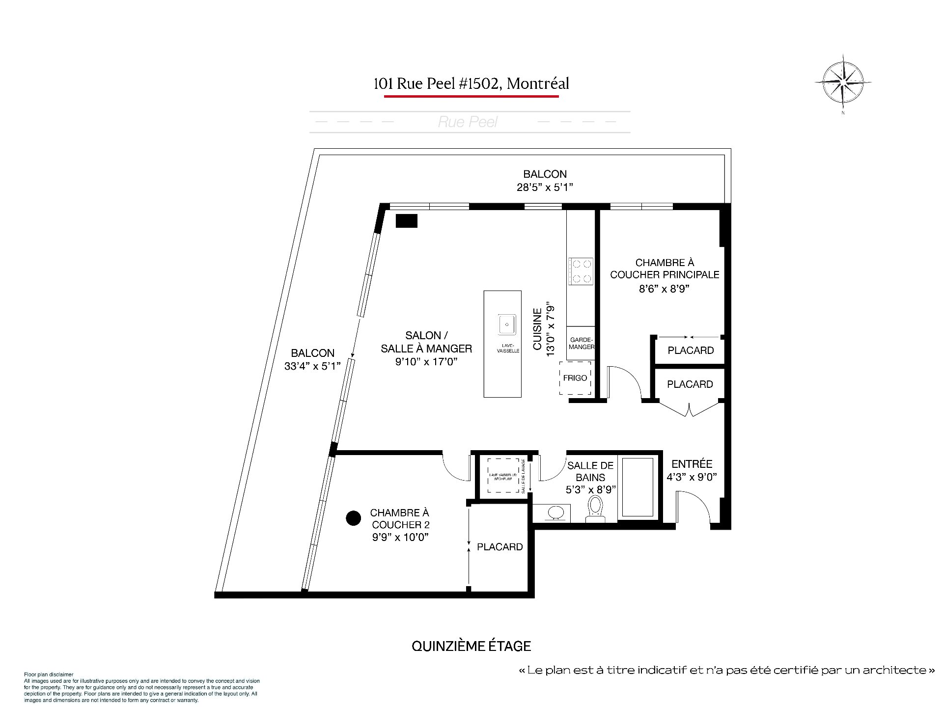
Plongez dans l'élégance urbaine au Mary Roberts à Griffintown! Cette unité de coin de 2 chambres offre 717 pi² d'espace intérieur ainsi qu'un balcon en L de 315 pi², pour plus de 1 032 pi² d'espace de vie. Grâce à ses 13 fenêtres panoramiques pleine hauteur, le condo est inondé de lumière naturelle et offre de superbes vues sur la ville et le fleuve Saint-Laurent. Les résidents profitent d'un lounge piano, d'un salon élégant, d'un gym, d'une piscine sur le toit, d'un spa, d'un sauna, d'une réception avec sécurité 24/7 et d'un espace de rangement inclus. À quelques pas du canal de Lachine, des parcs, des épiceries et des restaurants.
Détails
- Restrictions/Permissions
- Animaux permis
- Fumeurs
- Location court terme non permise
- Mode de chauffage
- Air soufflé
- Plinthes électriques
- Facilité d'accès
- Ascenseur
- Services disponibles
- Chute à déchets
- Salle d'exercice
- Sauna
- Détecteur d'incendie
- Approvisionnement en eau
- Municipalité
- Énergie pour le chauffage
- Électricité
- Équipement disponible
- Balcon privé
- Échangeur d'air
- Système d'alarme
- Thermopompe centrale
- Piscine
- Chauffée
- Intérieure
- Proximité
- Autoroute/Voie rapide
- Garderie/CPE
- Hôpital
- Parc-espace vert
- Piste cyclable
- Réseau Express Métropolitain (REM)
- Transport en commun
- Université
- Système d'égouts
- Municipal
- Vue
- Sur l'eau
- Sur la ville
- Zonage
- Résidentiel
- Nom du plan d'eau
- Bassins Peel
- Près de
- Rue Wellington
- Année de construction
- 2021
- Appartement
- 1502
- Superficie habitable
- 717 pc
- Nombre d'étages
- 23
- Nombre de pièces
- 4
- Nombre de chambres
- 2
- Nombre de chambres hors-sol
- 2
- Nombre de chambres au sous-sol
- 0
- Nombre de salles de bains
- 1
- Nombre de salles d'eau
- 0
- Nombre d'unités total
- 250
- Étage
- 15ième étage
- Type de bâtiment
- Détaché (Isolé)
- Type de copropriété
- Divise
- Type de superficie habitable
- Brute
- Unité :
- 1
- Nombre de pièces
- 4
- Nombre de chambres
- 2
Type de pièce
Étage
Dimensions
Plancher
Autres détails
- Type de pièce :
- Entrée
- Étage :
- 15e étage
- Dimensions :
- 4.3x9.0 p
- Plancher :
- Bois
- Autres détails :
- H: 7'1''
- Type de pièce :
- Salon/salle à manger
- Étage :
- 15e étage
- Dimensions :
- 9.10x17.0 p
- Plancher :
- Bois
- Autres détails :
- H: 8'2''
- Type de pièce :
- Cuisine
- Étage :
- 15e étage
- Dimensions :
- 13.0x7.9 p
- Plancher :
- Bois
- Autres détails :
- H: 7'3''
- Type de pièce :
- Chambre à coucher principale
- Étage :
- 15e étage
- Dimensions :
- 8.6x8.9 p
- Plancher :
- Bois
- Autres détails :
- H: 8'1''
- Type de pièce :
- Salle de bains
- Étage :
- 15e étage
- Dimensions :
- 5.3x8.9 p
- Plancher :
- Céramique
- Autres détails :
- H: 7'5''
- Type de pièce :
- Chambre à coucher
- Étage :
- 15e étage
- Dimensions :
- 9.9x10.0 p
- Plancher :
- Bois
- Autres détails :
- H: 8'1''
- Inclusions
- Réfrigérateur, cuisinière, plaque de cuisson, lave-vaisselle, laveuse, sécheuse, rideaux.
Évaluations
- Évaluation du bâtiment
- 502 600 $
- Évaluation du terrain
- 52 500 $
- Année de l'évaluation
- 2026
- Garantie légale
- Vente avec garantie légale
Dépenses
- Frais de copropriété - Dépense générale
- Montant:5 160 $
- Fréquence:Annuel
- Coût d'énergie - Dépense générale
- Montant:579 $
- Fréquence:Annuel
- Taxes municipales - Dépense générale
- Année:2026
- Montant:3 326 $
- Fréquence:Annuel
- Taxes scolaires - Dépense générale
- Année:2025
- Montant:390 $
- Fréquence:Annuel
Addenda
CETTE INFORMATION DOIT FAIRE PARTIE INTEGRANTE DE TOUTE PROMESSE D'ACHAT :
1- Une pré-approbation hypothécaire valide ou une preuve de fonds si applicable.
2- Tous les dépôts en fidéicommis doivent être faits au nom du notaire instrumentaire.
Offrant 717 pi² d'espace intérieur, complété par un spacieux balcon de 315 pi², cette propriété propose plus de 1 000 pi² d'espace à profiter.
DÉCLARATIONS:
Les frais mensuels comprennent : condo, électricité et entretien des espaces communs, frais d'administration et de gestion, fonds de prévoyance, assurance du bâtiment, sécurité - horaire 24/7, salle de sport, piscine extérieure, bain à remous, sauna, eau chaude de la partie privative, salle de conférence, salle de fête - frais de réservation applicables, billard, salon.
Les cadastres des parties communes sont les suivants: 6216196, 6216200, 6216201, 6216204, 6216205, 6441167, 6441168, 6469558, 6469559, 6469560, 6469561.
***Image retouchée à des fins de mise en valeur. Certains éléments permanents ont été modifiés ou retirés. L'image est fournie à titre indicatif seulement et ne constitue pas une représentation exacte de l'immeuble.***
1- Une pré-approbation hypothécaire valide ou une preuve de fonds si applicable.
2- Tous les dépôts en fidéicommis doivent être faits au nom du notaire instrumentaire.
Offrant 717 pi² d'espace intérieur, complété par un spacieux balcon de 315 pi², cette propriété propose plus de 1 000 pi² d'espace à profiter.
DÉCLARATIONS:
Les frais mensuels comprennent : condo, électricité et entretien des espaces communs, frais d'administration et de gestion, fonds de prévoyance, assurance du bâtiment, sécurité - horaire 24/7, salle de sport, piscine extérieure, bain à remous, sauna, eau chaude de la partie privative, salle de conférence, salle de fête - frais de réservation applicables, billard, salon.
Les cadastres des parties communes sont les suivants: 6216196, 6216200, 6216201, 6216204, 6216205, 6441167, 6441168, 6469558, 6469559, 6469560, 6469561.
***Image retouchée à des fins de mise en valeur. Certains éléments permanents ont été modifiés ou retirés. L'image est fournie à titre indicatif seulement et ne constitue pas une représentation exacte de l'immeuble.***
Courtiers immobiliers
Martin Rouleau
Courtier immobilier résidentiel et commercial (C8386)
Martin Rouleau Courtier Immobilier Inc.
Agence immobilière :
ENGEL & VÖLKERS MONTRÉAL (G7014)
Boutique immobilière ⬩ Westmount
Raghd Issa
Courtier immobilier résidentiel (H2011)
Raghd Issa Inc.
Agence immobilière :
ENGEL & VÖLKERS MONTRÉAL (G7014)
Boutique immobilière ⬩ Westmount