Condo à vendre - Ayer's Cliff555 000 $ +taxes
555 000 $ +taxes
Courtier inscripteur : Leïla Serrhini - Engel & Völkers ● # 24631010
2
1
1
3
52,1 mc
2021
Description
Lac Massawippi ! Magnifique condo au design raffiné, situé dans le prestigieux environnement de Ripplecove et offrant une expérience de style hôtelier distinctive. Unité clé en main idéale comme résidence ou investissement, offrant un accès privilégié à un cadre naturel exceptionnel et aux commodités de l'Hotel & Spa Ripplecove. Le condo peut être loué par l'entremise de l'Hotel. Intérieur contemporain baigné de lumière, avec lit king, foyer moderne, cuisine et salle de bains haut de gamme. Superbe terrasse couverte avec une vue imprenable sur le lac, pour des moments de détente privilégiés en toute saison. La paix !
Détails
- Adapté pour personnes à mobilité réduite
- Rampe d'accès extérieure
- Particularités
- Accès à l'eau (Lac)
- Bordé à l'eau (Lac)
- Embarquation moteur permise
- Allée
- Asphalte
- Armoires
- Polyester
- Mode de chauffage
- Air soufflé
- Plinthes électriques
- Services disponibles
- Aires communes
- Balcon/Terrasse
- Salle d'exercice
- Piscine extérieure
- Repas offerts
- Espace de rangement intérieur
- Sauna
- Spa
- Espace de stationnement pour visiteur
- Terrasse sur le toit
- Détecteur d'incendie
- Facilité d'accès
- Ascenseur
- Approvisionnement en eau
- Municipalité
- Énergie pour le chauffage
- Électricité
- Équipement disponible
- Autre (Détecteur monoxyde de carbone)
- Balcon privé
- Borne de recharge - niveau 2
- Échangeur d'air
- Meublé
- Porte de garage électrique
- Système d'alarme
- Thermopompe centrale
- Fenêtres
- PVC
- Foyers-poêles
- Autre (Propane)
- Garage
- Attaché
- Intégré
- Simple largeur
- Piscine
- Chauffée
- Creusée
- Proximité
- Golf
- Parc-espace vert
- Piste cyclable
- Ski de fond
- Sentier de motoneige
- Sentier de VTT
- Restrictions/Permissions
- Location court terme permise
- Stationnement cadastré (inclus dans le prix)
- Garage (1)
- Stationnement (total)
- Au garage (1)
- Système d'égouts
- Municipal
- Aménagement du terrain
- Paysager
- Type de fenêtre
- Coulissante
- Topographie
- Plat
- Vue
- Sur l'eau
- Zonage
- Récréotouristique
- Villégiature
- Nom du plan d'eau
- Lac Massawippi
- Année de construction
- 2021
- Appartement
- 119
- Superficie habitable
- 52,1 mc
- Façade du bâtiment
- 4.46 m
- Profondeur du bâtiment
- 12.59 m
- Nombre de pièces
- 3
- Nombre de chambres
- 2
- Nombre de chambres hors-sol
- 2
- Nombre de chambres au sous-sol
- 0
- Nombre de salles de bains
- 1
- Nombre de salles d'eau
- 0
- Étage
- Rez-de-chaussée
- Type de bâtiment
- Détaché (Isolé)
- Type de copropriété
- Divise
- Type de superficie habitable
- Au plan cadastral
- Unité :
- 1
- Nombre de pièces
- 3
- Nombre de chambres
- 2
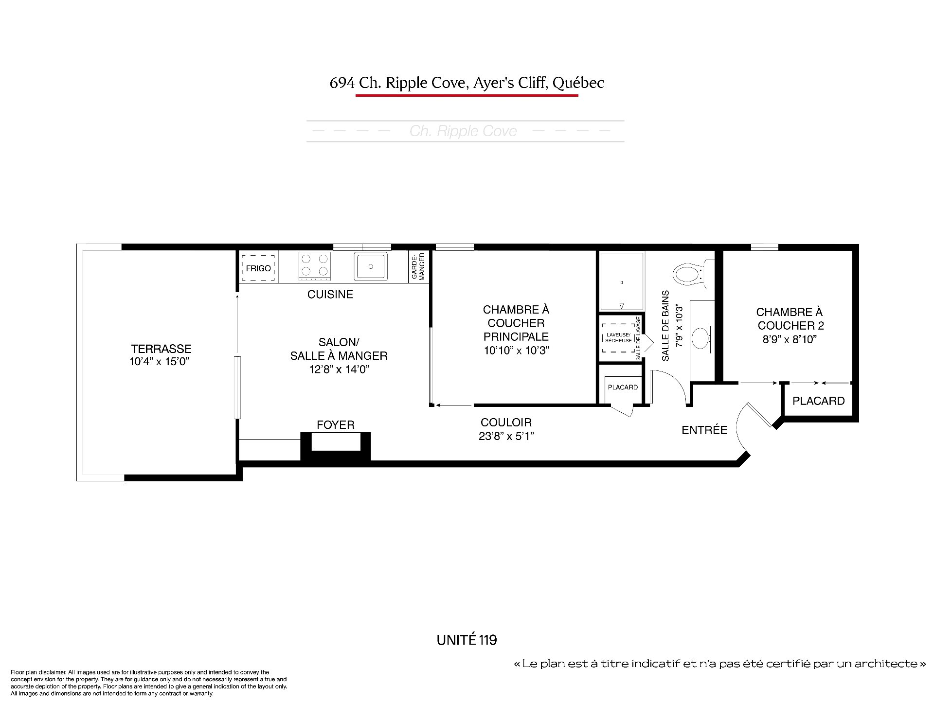
Type de pièce
Étage
Dimensions
- Type de pièce :
- Salon/Salle à manger et cuisine
- Étage :
- 1er niveau/RDC
- Dimensions :
- 12.8x14.0 p
- Type de pièce :
- Chambre à coucher principale
- Étage :
- 1er niveau/RDC
- Dimensions :
- 10.10x10.3 p
- Type de pièce :
- Chambre à coucher
- Étage :
- 1er niveau/RDC
- Dimensions :
- 8.9x8.10 p
- Type de pièce :
- Corridor
- Étage :
- 1er niveau/RDC
- Dimensions :
- 23.8x5.1 p
- Type de pièce :
- Salle de bains
- Étage :
- 1er niveau/RDC
- Dimensions :
- 7.9x10.3 p
- Inclusions
- Tous les meubles intérieurs et extérieurs, tous les électroménagers et les accessoires de cuisine, décorations et literies.
- Exclusions
- Effets personnels des vendeurs
Évaluations
- Évaluation du bâtiment
- 599 800 $
- Année de l'évaluation
- 2025
- Garantie légale
- Vente avec garantie légale
Dépenses
- Frais de copropriété - Dépense générale
- Montant:12 912 $
- Fréquence:Annuel
- Taxes municipales - Dépense générale
- Année:2025
- Montant:3 108 $
- Fréquence:Annuel
- Taxes scolaires - Dépense générale
- Année:2025
- Montant:403 $
- Fréquence:Annuel
Addenda
En bordure du lac Massawippi, ce superbe condo d'angle situé au coeur du prestigieux complexe Ripplecove offre une véritable expérience de villégiature haut de gamme dans un environnement naturel d'exception. Conçu pour maximiser le confort, la luminosité et la vue, il propose un cadre de vie élégant, paisible et entièrement clé en main, idéal comme résidence, pied-à-terre ou investissement.
L'unité se démarque par son design contemporain à aire ouverte, ses lignes épurées et ses matériaux de qualité. La généreuse fenestration baigne l'espace de vie d'une lumière naturelle abondante et met en valeur la vue sur le lac. Le salon est agrémenté d'un foyer moderne, créant une ambiance chaleureuse et invitante en toute saison. La cuisine complète, à la fois élégante et fonctionnelle, est dotée d'un coin bureau intégré, parfaitement adapté au télétravail ou à une utilisation polyvalente.
La ou les chambres offrent un confort digne de l'hôtellerie haut de gamme, avec des rangements bien pensés et une atmosphère apaisante. La salle de bains au style épuré se distingue par ses finitions soignées et sa douche vitrée. À l'extérieur, la superbe terrasse aménagée couverte constitue un véritable prolongement de l'espace de vie, offrant une vue imprenable et relaxante sur le lac, idéale pour profiter du paysage en toute saison.
L'unité bénéficie également d'un accès privilégié aux commodités du complexe Ripplecove, reconnu pour son atmosphère exclusive, son cadre naturel recherché et la qualité de ses services.
CARACTÉRISTIQUES DE L'UNITÉ
* Condo d'angle situé dans le prestigieux complexe Ripplecove
* Concept à aire ouverte au design contemporain
* Deux chambres offrant un confort hôtelier
* Foyer moderne au salon
* Cuisine complète avec coin bureau intégré
* Salle de bains haut de gamme avec douche vitrée
* Terrasse couverte avec vue directe sur le lac Massawippi
* Fenestration abondante et excellente luminosité
* Matériaux et finitions de qualité supérieure
* Entièrement meublé
* Unité clé en main, idéale pour résidence ou investissement
* Climatisation et chauffage central
* Accès aux espaces communs et services du complexe
PROXIMITÉ & ACTIVITÉS
* Accès direct au lac Massawippi
* Activités nautiques : kayak, paddle-board, baignade (selon la saison) et bien plus
* Sentiers pédestres et espaces naturels environnants
* Golf du Ripplecove à proximité
* Spa, restaurants et services du complexe
* À quelques minutes du village d'Ayer's Cliff
* Restaurants, cafés et commerces locaux
* À courte distance de Magog et du lac Memphrémagog
* Accès facile aux routes principales
* Environnement paisible et recherché en Estrie
L'unité se démarque par son design contemporain à aire ouverte, ses lignes épurées et ses matériaux de qualité. La généreuse fenestration baigne l'espace de vie d'une lumière naturelle abondante et met en valeur la vue sur le lac. Le salon est agrémenté d'un foyer moderne, créant une ambiance chaleureuse et invitante en toute saison. La cuisine complète, à la fois élégante et fonctionnelle, est dotée d'un coin bureau intégré, parfaitement adapté au télétravail ou à une utilisation polyvalente.
La ou les chambres offrent un confort digne de l'hôtellerie haut de gamme, avec des rangements bien pensés et une atmosphère apaisante. La salle de bains au style épuré se distingue par ses finitions soignées et sa douche vitrée. À l'extérieur, la superbe terrasse aménagée couverte constitue un véritable prolongement de l'espace de vie, offrant une vue imprenable et relaxante sur le lac, idéale pour profiter du paysage en toute saison.
L'unité bénéficie également d'un accès privilégié aux commodités du complexe Ripplecove, reconnu pour son atmosphère exclusive, son cadre naturel recherché et la qualité de ses services.
CARACTÉRISTIQUES DE L'UNITÉ
* Condo d'angle situé dans le prestigieux complexe Ripplecove
* Concept à aire ouverte au design contemporain
* Deux chambres offrant un confort hôtelier
* Foyer moderne au salon
* Cuisine complète avec coin bureau intégré
* Salle de bains haut de gamme avec douche vitrée
* Terrasse couverte avec vue directe sur le lac Massawippi
* Fenestration abondante et excellente luminosité
* Matériaux et finitions de qualité supérieure
* Entièrement meublé
* Unité clé en main, idéale pour résidence ou investissement
* Climatisation et chauffage central
* Accès aux espaces communs et services du complexe
PROXIMITÉ & ACTIVITÉS
* Accès direct au lac Massawippi
* Activités nautiques : kayak, paddle-board, baignade (selon la saison) et bien plus
* Sentiers pédestres et espaces naturels environnants
* Golf du Ripplecove à proximité
* Spa, restaurants et services du complexe
* À quelques minutes du village d'Ayer's Cliff
* Restaurants, cafés et commerces locaux
* À courte distance de Magog et du lac Memphrémagog
* Accès facile aux routes principales
* Environnement paisible et recherché en Estrie
Courtier immobilier
Leïla Serrhini
Courtier immobilier résidentiel (H7646)
Agence immobilière :
ENGEL & VÖLKERS MONTRÉAL (G7014)
Boutique immobilière ⬩ CANTONS DE L'EST