Bungalow à vendre - Granby1 050 000 $
1 050 000 $
Courtiers inscripteurs : Alexandre Fortin - Engel & Völkers ● Luce Deslauriers - Engel & Völkers ● # 27104901
4
2
2
4
8
1 275,2 mc
2020
Description
Superbe maison contemporaine construction 2020, dans un secteur recherché près de tout, écoles (primaire et secondaire), garderies, centre multisports, autoroute, centre-ville. Ce plain-pied offre un espace de vie lumineux avec sa grande fenestration à aire ouverte avec cuisine moderne et îlot en quartz. Vous y trouverez 4 chambres, 2 salles de bain, dont une attenante à la chambre principale avec douche et lavabo double et bain autoportant. Sous-sol entièrement aménagé avec grande salle familiale et gym, 2 autres chambres, salle de bain avec douche et salle de lavage et grand. Garage double et une terrasse couverte en font l'achat idéal!
Détails
- Allée
- Asphalte
- Mode de chauffage
- Air soufflé
- Radiant
- Approvisionnement en eau
- Municipalité
- Énergie pour le chauffage
- Électricité
- Équipement disponible
- Borne de recharge - niveau 2
- Thermopompe centrale
- Fondation
- Béton coulé
- Garage
- Attaché
- Chauffé
- Double largeur ou plus
- Intégré
- Particularités
- Cul-de-sac
- Proximité
- Autoroute/Voie rapide
- Garderie/CPE
- Piste cyclable
- École primaire
- École secondaire
- Salle de bains/salle d'eau
- Attenante à la chambre principale
- Douche indépendante
- Sous-sol
- 6 pieds et plus
- Totalement aménagé
- Stationnement (total)
- Extérieur (4)
- Au garage (2)
- Système d'égouts
- Municipal
- Toiture
- Bardeaux d'asphalte
- Zonage
- Résidentiel
- Superficie du terrain
- 1 275,2 mc
- Façade du terrain
- 32.20 m
- Profondeur du terrain
- 38.40 m
- Près de
- Bd Pierre-Laporte
- Année de construction
- 2020
- Façade du bâtiment
- 14.72 m
- Profondeur du bâtiment
- 17.06 m
- Nombre de pièces
- 8
- Nombre de chambres
- 4
- Nombre de chambres hors-sol
- 2
- Nombre de chambres au sous-sol
- 2
- Nombre de salles de bains
- 2
- Nombre de salles d'eau
- 0
- Type de bâtiment
- Détaché (Isolé)
- Unité :
- 1
- Nombre de pièces
- 8
- Nombre de chambres
- 4
Type de pièce
Étage
Dimensions
Autres détails
- Type de pièce :
- Hall d'entrée/Vestibule
- Étage :
- 1er niveau/RDC
- Dimensions :
- 8.7x7.1 p
- Autres détails :
- Type de pièce :
- Penderie (Walk-in)
- Étage :
- 1er niveau/RDC
- Dimensions :
- 4.3x7.1 p
- Autres détails :
- de l'entrée
- Type de pièce :
- Cuisine
- Étage :
- 1er niveau/RDC
- Dimensions :
- 18.9x12.3 p
- Autres détails :
- Type de pièce :
- Garde-manger
- Étage :
- 1er niveau/RDC
- Dimensions :
- 4.6x4.3 p
- Autres détails :
- Type de pièce :
- Garde-manger / rangement
- Étage :
- 1er niveau/RDC
- Dimensions :
- 6.1x6.5 p
- Autres détails :
- Type de pièce :
- Salle à manger
- Étage :
- 1er niveau/RDC
- Dimensions :
- 18.9x11.1 p
- Autres détails :
- Type de pièce :
- Salon
- Étage :
- 1er niveau/RDC
- Dimensions :
- 11.5x16.7 p
- Autres détails :
- Type de pièce :
- Chambre à coucher
- Étage :
- 1er niveau/RDC
- Dimensions :
- 13.3x12.7 p
- Autres détails :
- Type de pièce :
- Penderie (Walk-in)
- Étage :
- 1er niveau/RDC
- Dimensions :
- 5.1x8.10 p
- Autres détails :
- Type de pièce :
- Chambre à coucher
- Étage :
- 1er niveau/RDC
- Dimensions :
- 16.10x13.2 p
- Autres détails :
- Type de pièce :
- Penderie (Walk-in)
- Étage :
- 1er niveau/RDC
- Dimensions :
- 4.3x4.6 p
- Autres détails :
- Type de pièce :
- Salle de bains
- Étage :
- 1er niveau/RDC
- Dimensions :
- 20.5x10.5 p
- Autres détails :
- Type de pièce :
- Salle familiale
- Étage :
- Sous-sol
- Dimensions :
- 34.5x22.8 p
- Autres détails :
- Type de pièce :
- Chambre à coucher
- Étage :
- Sous-sol
- Dimensions :
- 14.5x13.11 p
- Autres détails :
- Type de pièce :
- Penderie (Walk-in)
- Étage :
- Sous-sol
- Dimensions :
- 9.9x4.1 p
- Autres détails :
- Type de pièce :
- Chambre à coucher
- Étage :
- Sous-sol
- Dimensions :
- 15.10x13.3 p
- Autres détails :
- Type de pièce :
- Salle de bains
- Étage :
- Sous-sol
- Dimensions :
- 7.8x9.6 p
- Autres détails :
- Type de pièce :
- Salle de lavage
- Étage :
- Sous-sol
- Dimensions :
- 6.2x9.6 p
- Autres détails :
- Type de pièce :
- Rangement
- Étage :
- Sous-sol
- Dimensions :
- 13.3x15.7 p
- Autres détails :
- Type de pièce :
- Salle mécanique
- Étage :
- Sous-sol
- Dimensions :
- 14.5x8.2 p
- Autres détails :
- et rangement
- Inclusions
- Luminaires, tringles, rideaux, stores, aspirateur central et accessoires, échangeur d'air, système d'alarme, 2 ouvres porte de garage électrique, borne VE extérieur, chauffe terrasse extérieur, système fournaire air pulsé central avec thermopompe, foyer électrique extérieur.
Évaluations
- Évaluation du bâtiment
- 574 300 $
- Évaluation du terrain
- 201 700 $
- Année de l'évaluation
- 2026
- Garantie légale
- Vente avec garantie légale
Dépenses
- Taxes municipales - Dépense générale
- Année:2026
- Montant:4 859 $
- Fréquence:Annuel
- Taxes scolaires - Dépense générale
- Année:2025
- Montant:489 $
- Fréquence:Annuel
Addenda
Vous cherchez une maison contemporaine à Granby, avec des matériaux haut de gamme, un confort supérieur et un emplacement stratégique. Cette propriété se démarque clairement sur le marché actuel.
Située au 78 rue Robitaille, dans un secteur prisé de Granby, cette propriété construite en 2020 offre un style de vie exceptionnel à proximité des écoles primaires et secondaires, des garderies, d'un centre multisports accessible à pied et à moins de 10 minutes de l'autoroute. Un emplacement parfait pour les familles modernes.
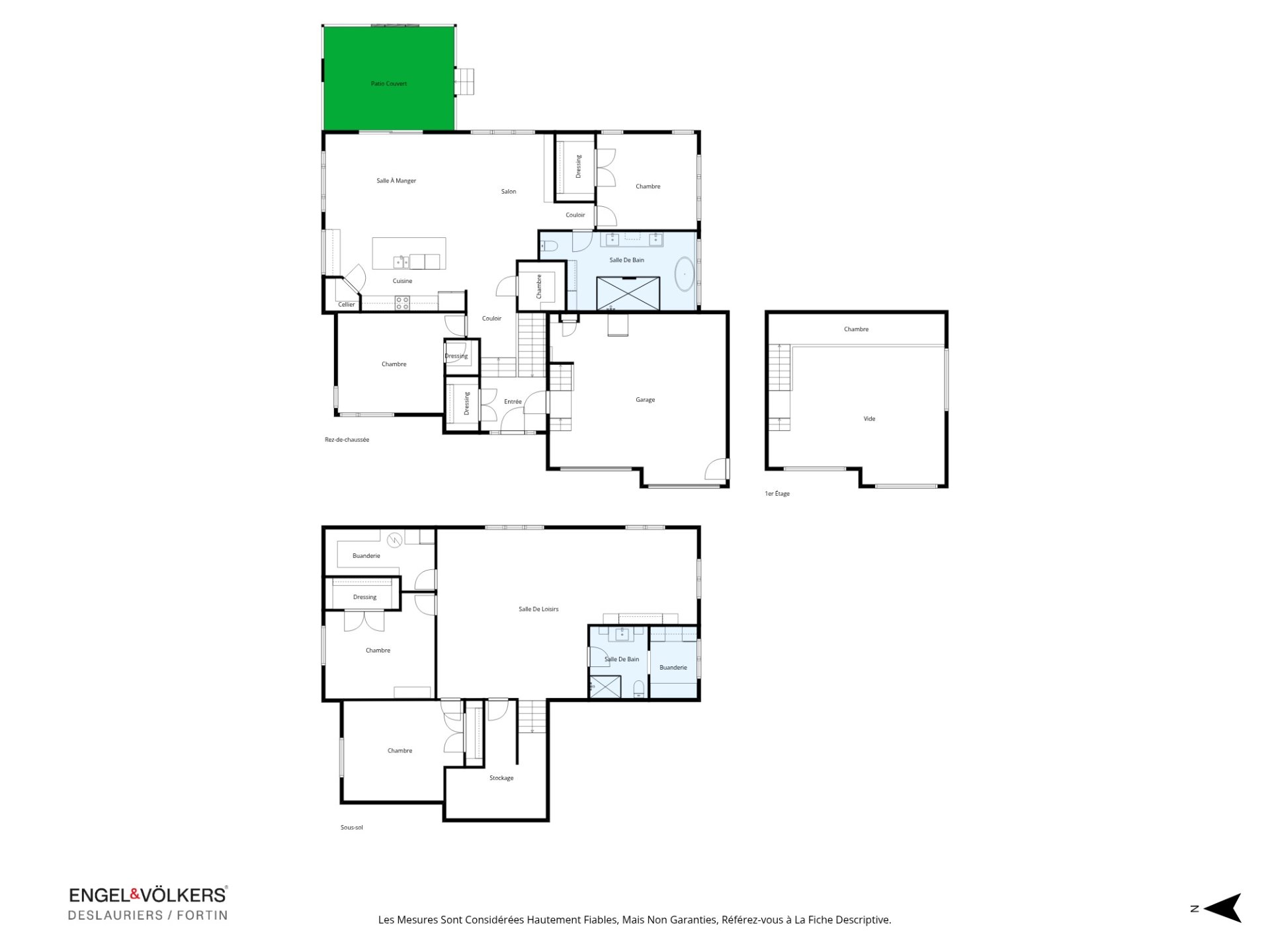
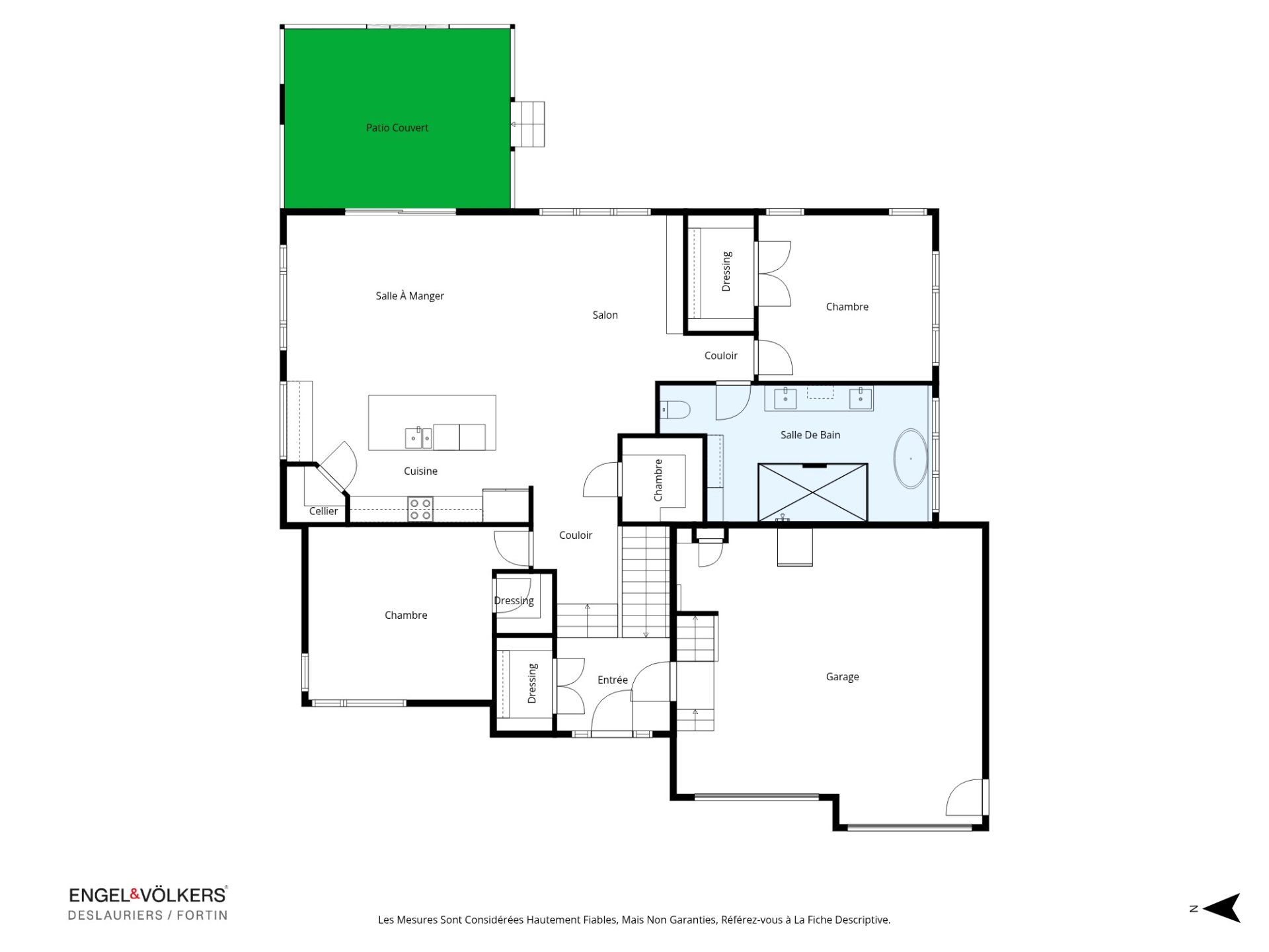
Dès votre arrivée, vous serez impressionné par une entrée fonctionnelle avec walk-in et accès direct au garage double chauffé, incluant une mezzanine, idéal pour le rangement ou les voitures.
Le rez-de-chaussée propose une aire de vie ouverte baignée de lumière naturelle. Le salon avec télévision encastrée, la salle à manger et la cuisine créent un espace convivial et élégant. La cuisine moderne offre un îlot en quartz, un garde-manger pratique et des finitions épurées.
Le confort est au rendez-vous avec des planchers radiants électriques en céramique dans l'entrée, la cuisine et les salles de bain, ainsi qu'un plancher de bois franc dans les aires principales.
La chambre principale est un véritable havre de paix avec un grand walk-in et une salle de bain attenante comprenant une double vanité, une douche double avec colonnes indépendantes, un bain autoportant et du rangement intégré.
Un bureau ou chambre supplémentaire complète le rez-de-chaussée, parfait pour le télétravail.
À l'extérieur, profitez d'une grande terrasse couverte en béton, équipée de deux ventilateurs, d'un chauffe-terrasse au quartz et d'un foyer électrique, offrant un espace confortable et intime grâce à son aménagement paysager. Une section barbecue couverte est y également.
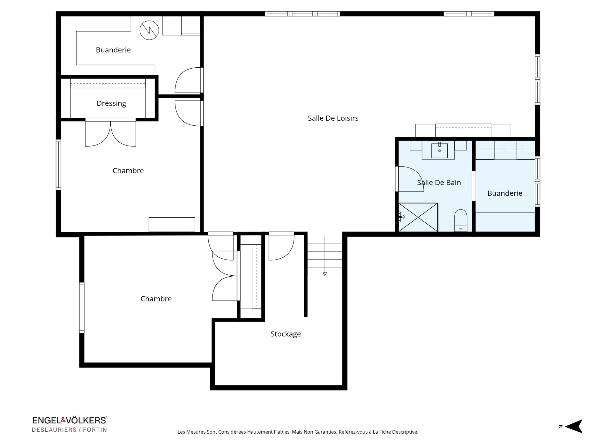
Le sous-sol, avec dalle chauffée, offre un immense potentiel et est entièrement aménagé. Il comprend deux chambres avec walk-in, une salle de bain avec douche, une salle de lavage, un espace gym, une grande salle familiale ainsi que plusieurs espaces de rangement.
Côté mécanique, la propriété est équipée d'un système central avec thermopompe, pour vous assurez un confort sans égal.
Cette propriété se distingue par sa qualité de construction, ses caractéristiques haut de gamme et son emplacement stratégique à Granby.
Une opportunité rare pour un acheteur qui veut une maison clé en main, moderne et parfaitement pensée.
Située au 78 rue Robitaille, dans un secteur prisé de Granby, cette propriété construite en 2020 offre un style de vie exceptionnel à proximité des écoles primaires et secondaires, des garderies, d'un centre multisports accessible à pied et à moins de 10 minutes de l'autoroute. Un emplacement parfait pour les familles modernes.
Dès votre arrivée, vous serez impressionné par une entrée fonctionnelle avec walk-in et accès direct au garage double chauffé, incluant une mezzanine, idéal pour le rangement ou les voitures.
Le rez-de-chaussée propose une aire de vie ouverte baignée de lumière naturelle. Le salon avec télévision encastrée, la salle à manger et la cuisine créent un espace convivial et élégant. La cuisine moderne offre un îlot en quartz, un garde-manger pratique et des finitions épurées.
Le confort est au rendez-vous avec des planchers radiants électriques en céramique dans l'entrée, la cuisine et les salles de bain, ainsi qu'un plancher de bois franc dans les aires principales.
La chambre principale est un véritable havre de paix avec un grand walk-in et une salle de bain attenante comprenant une double vanité, une douche double avec colonnes indépendantes, un bain autoportant et du rangement intégré.
Un bureau ou chambre supplémentaire complète le rez-de-chaussée, parfait pour le télétravail.
À l'extérieur, profitez d'une grande terrasse couverte en béton, équipée de deux ventilateurs, d'un chauffe-terrasse au quartz et d'un foyer électrique, offrant un espace confortable et intime grâce à son aménagement paysager. Une section barbecue couverte est y également.
Le sous-sol, avec dalle chauffée, offre un immense potentiel et est entièrement aménagé. Il comprend deux chambres avec walk-in, une salle de bain avec douche, une salle de lavage, un espace gym, une grande salle familiale ainsi que plusieurs espaces de rangement.
Côté mécanique, la propriété est équipée d'un système central avec thermopompe, pour vous assurez un confort sans égal.
Cette propriété se distingue par sa qualité de construction, ses caractéristiques haut de gamme et son emplacement stratégique à Granby.
Une opportunité rare pour un acheteur qui veut une maison clé en main, moderne et parfaitement pensée.
Courtiers immobiliers
Alexandre Fortin
Courtier immobilier résidentiel et commercial (G0931)
Alexandre Fortin Inc.
Agence immobilière :
ENGEL & VÖLKERS MONTRÉAL (G7014)
Boutique immobilière ⬩ CANTONS DE L'EST
Luce Deslauriers
Courtier immobilier résidentiel et commercial agréé DA (C4033)
Luce Deslauriers Inc.
Agence immobilière :
ENGEL & VÖLKERS MONTRÉAL (G7014)
Boutique immobilière ⬩ CANTONS DE L'EST